EasyManua.ls Logo

ABB HT563146 - Table of Tightening Torques

ABB HT563146
130 pages
Print Icon
To Next Page IconTo Next Page
To Next Page IconTo Next Page
To Previous Page IconTo Previous Page
To Previous Page IconTo Previous Page
Loading...
Operation Manual / TPS44-F.. - TPS61-F..
Disassembly and assembly
8
Table of tightening torques
8.6
Page 111
April 2015 HZTL2412_EN Revision E
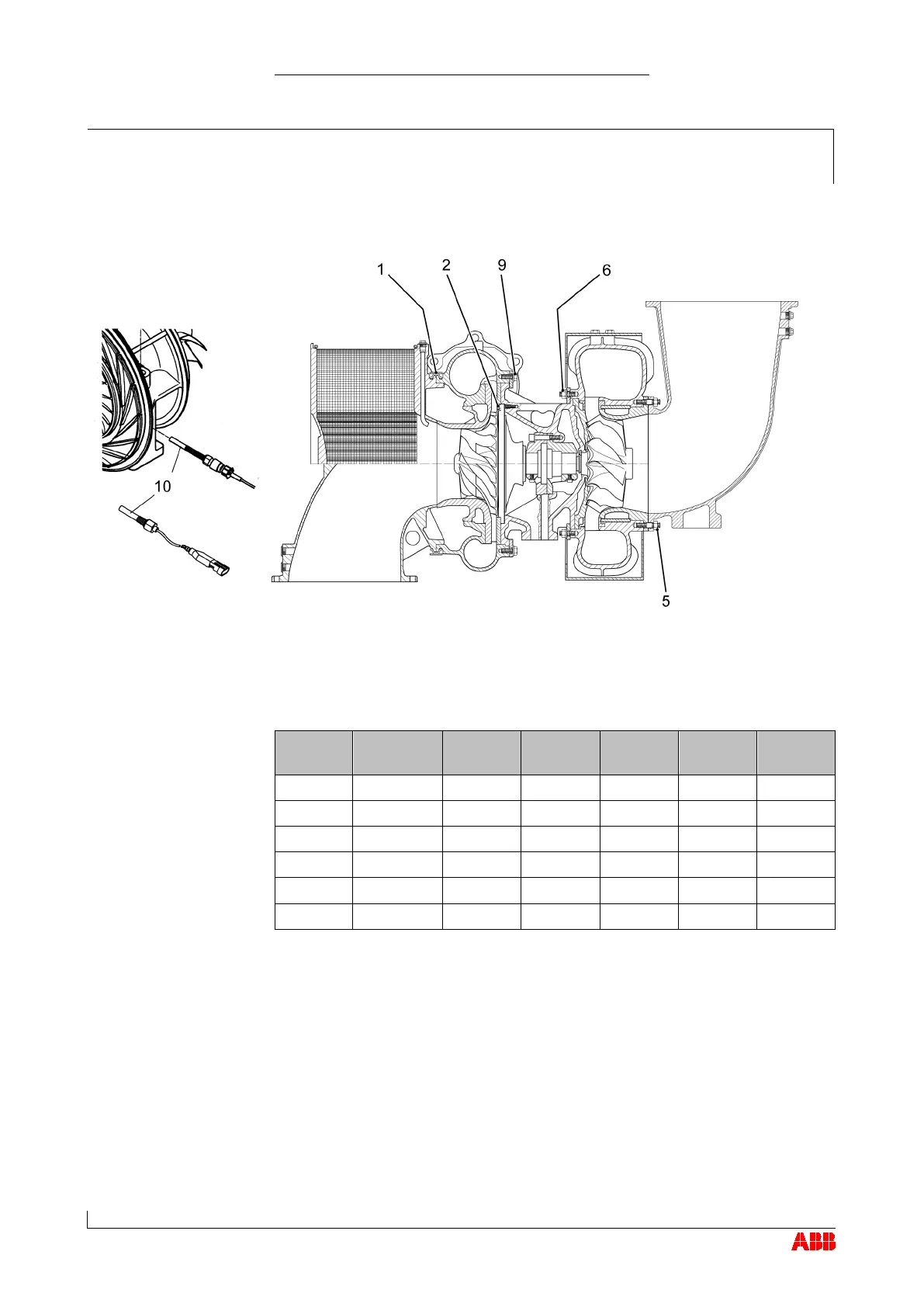
Table of tightening torques
8.6
The following tightening torques must be used for the specified screw
connections:
Item
Part
number
TPS44
TPS48
TPS52
TPS57
TPS61
1 72020 60 60 60 60 60
2
42008
6
10
10
20
20
5 52433 20 20 40 65 65
6 51007 25 25 45 75 75
9 72011 35 35 70 105 105
10
86505
15
15
15
15
15
8.6
Tightening torques [Nm]
© Copyright 2015 ABB. All rights reserved.

Table of Contents

Related product manuals