EasyManua.ls Logo

ABB REF 542 - Page 67

ABB REF 542
118 pages
Print Icon
To Next Page IconTo Next Page
To Next Page IconTo Next Page
To Previous Page IconTo Previous Page
To Previous Page IconTo Previous Page
Loading...
1MRS750527-MUM
)HHGHU7HUPLQDO
Technical Reference Manual, General
5()B
67
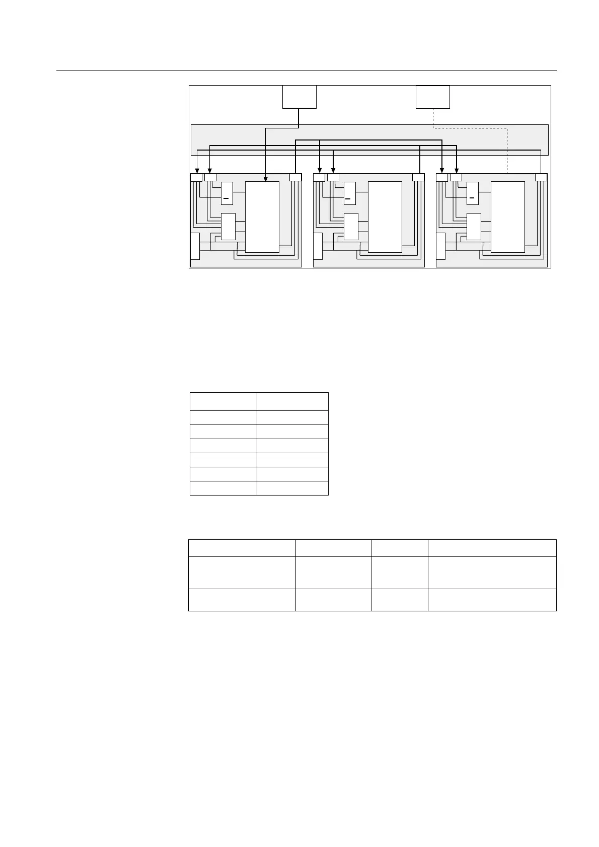
)LJ 3ULQFLSOHRIFRQQHFWLQJ/21LQSXWVDQGRXWSXWVWRORJLFIXQFWLRQV
RIWKHIHHGHUWHUPLQDO
Each SNVT_state network variable can be used to communicate either an integer
value in the range of 0-65535 or up to 16 Boolean values as a binary coded number.
The type conversion function BOOL2INT is useful for packing and INT2BOOL for
unpacking the binary coded variables. Each bit indicates the state of the Boolean
value with, for example, the following interpretations:
The communication inputs and outputs are seen in the relay configuration tool as
global variables:
where x is a number from 1 to 32. Similar names are used in the LON Network Tool.
The basic operation principle is that every time the output value is changed by the
configuration, the new value is propagated automatically over the LON network
to all communication inputs that are bound to the output. The network variable
connection can be from a single source to one or many sinks. An output can also
be unbound, i.e. it is not transmitted to LON network at all. Also an input can be
unbound, i.e. no updates will be accepted to this input.
Communication inputs acts as holding registers, they preserve the last received

off on
inactive active
disabled enabled
low high
false true
normal alarm
FDWHJRU\ QDPH GDWDW\SH SXUSRVH
communication inputs (sinks) COMM_INx
COMM_INxIV
UINT
BOOL
input value
input invalidity flag, FALSE
indicates a valid state
communication outputs
(sources)
COMM_OUTx UINT output value
>1
nv16
nv16 nv16
I/O
REF 54_
>1
nv16
nv16 nv16
I/O
REF 54_
>1
nv16
I/O
RE_ 54_
SYS
LON
LON
RE_ 54_
>1
nv16
nv16
nv16
I/O
RE_ 54_
nv16 nv16 nv16
I/O
>1
nv16nv16
lonlog
Inter-
locking
Blocking
Open
enable
Close
enable
Close
Open
Reserve
Inter-
locking
Open
enable
Close
enable
Close
Open
Reserve
Inter-
locking
Blocking
Open
enable
Close
enable
Close
Open
Reserve
Select/Execute
Blocking

Table of Contents

Related product manuals