EasyManua.ls Logo

Adarad DUNATECH 2012 - Hydraulic Circuit: Open Vented; Open Vented Circuit Setup

Default Icon
22 pages
Print Icon
To Next Page IconTo Next Page
To Next Page IconTo Next Page
To Previous Page IconTo Previous Page
To Previous Page IconTo Previous Page
Loading...
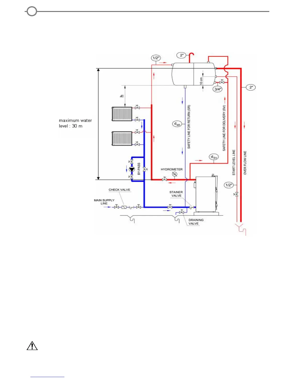
Hydraulic circuit
Open vented hydraulic circuit
Dunatech boilers are preferred to be installed in a hydraulic circuit with an open type expansion tank in accordance
with the following schemes. The circulation pump in the circuit should be installed on the return line to boiler in order to
prevent the system from excessive thermal stresses and overheating during electricty cuts off:
6
Open type expansion tank must be installed at the heighest level of whole hydraulic system. No globe valves must be
installed on delivery and return safety lines between boiler and expansion tank. Safety lines should be attached to inlet
and outlet lines of boiler at points as close as possible to boiler, using the shortest possible vertical way between
expansion tank and boiler.
If "h" distance in above scheme can not be arranged within the construction of present system, the circulation pump
must be installed on delivery line from boiler. "h" distance refers to the head pressure of circulation pump at operated
speed. If "h" distance can not be arranged in a system with circulation pump on return line, there will be air suction
from radiators at the highest level of system. In this case,the other scheme where pump is installed on the delivery
line must be referred.
A
hydrometer must be installed on the delivery line to monitor the pressure level and to check if there is any leakage.
The hydrometer should be purchased separately, and should be installed at the same level with the boiler outlet.
A
by-pass line should be installed between inlet and outlet connections of circulation pump in order to allow maximum
water delivery when circulation pump is switched off and there is fuel fired in boiler, particularly during sudden electricty
cuts off.
The optional safety heat exchanger kit is highly recommended to be used with the boiler, even in the case
6
The
optional
safety
heat
exchanger
kit
is
highly
recommended
to
be
used
with
the
boiler
,
even
in
the
case
of open vented systems to protect the boiler and the whole heating circuit against excessive heat
accumulation. For installation of this kit, please refer to the next section
6