EasyManua.ls Logo

Adarad DUNATECH 2012 - Page 6

Default Icon
22 pages
Print Icon
To Next Page IconTo Next Page
To Next Page IconTo Next Page
To Previous Page IconTo Previous Page
To Previous Page IconTo Previous Page
Loading...
7
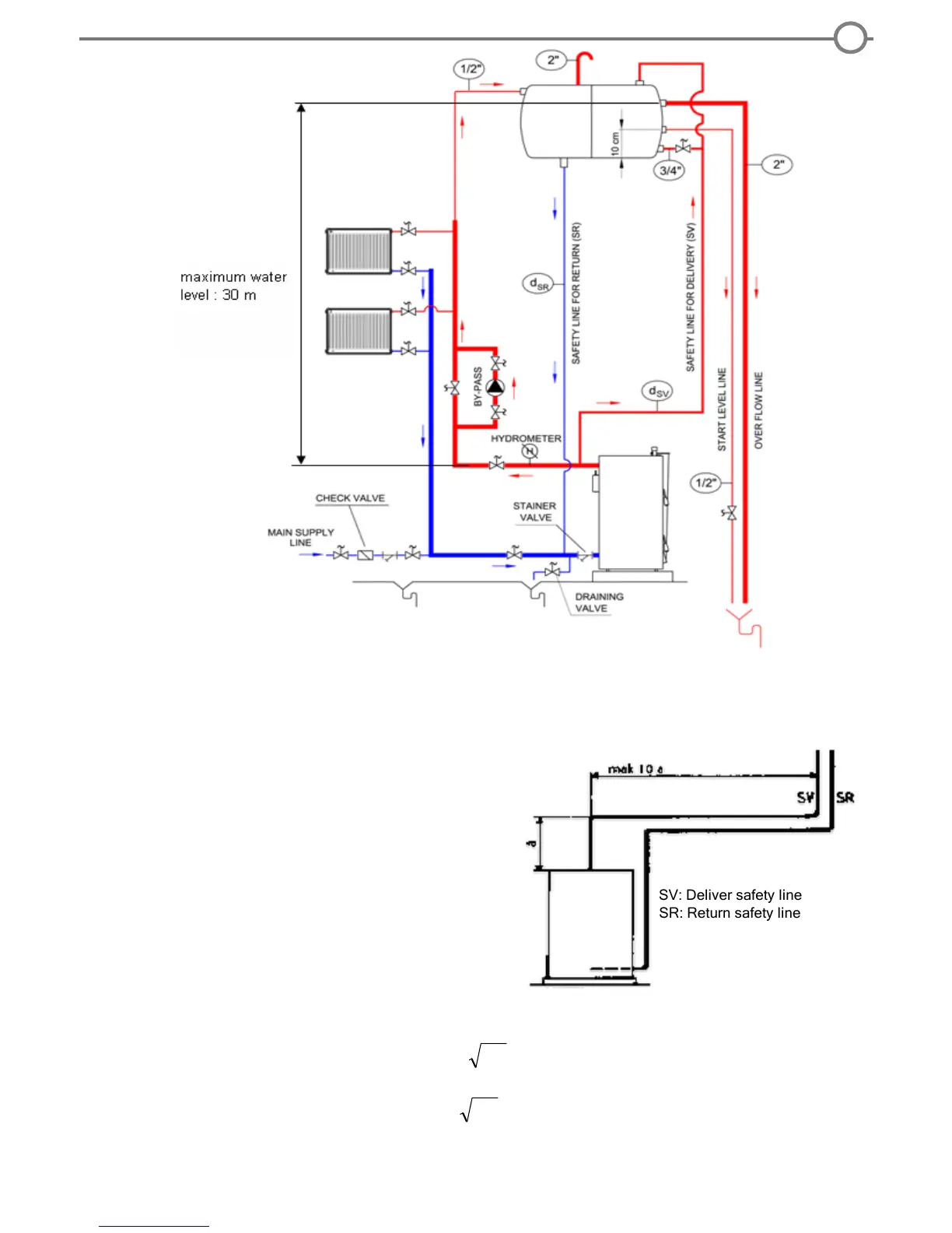
Design parameters for open expansion tank
Expansion tank protects the hydraulic curcuit from excessive temperatures by allowing free volume for expanding
water and keeping the water pressure from exceeding the static pressure. Expansion tank may be built in rectangular
prism or cylindirical shape, may be installed in horizontal or vertical position in the system. Safety lines between
boiler and expansion tank should be installed by an increasing slope up to tank. Following scheme shows the
maximum vertical distances between safety lines and boiler:
The size of expansion tank can easily be calculated
regarding the total expanding water contained in
whole system. If the total volume of water in the system
is Vs; the volume of expanison tank should be:
Vg= 8.Vs / 100 (in liters)
SV: Deliver safety line
In more practical way, just using the nominal heat output SR: Return safety line
of boiler (Qk) in terms of kW, the volume of expansion
tank can be caluculated as;
Vg= 2,15.Qk (in liters)
Sizing safety lines between boiler and open expansion tank
Size of the safety line for delivery (mm)
Size of the safety line for return
(mm)
7
kSV
Qd .5,115+=
k
S
R
Qd += 15
Size
of
the
safety
line
for
return
(mm)
where Qk is the boiler output in kW.
kSV
Qd .5,115+=
kSR
Qd += 15