EasyManua.ls Logo

Adarad DUNATECH 2012 - Page 7

Default Icon
22 pages
Print Icon
To Next Page IconTo Next Page
To Next Page IconTo Next Page
To Previous Page IconTo Previous Page
To Previous Page IconTo Previous Page
Loading...
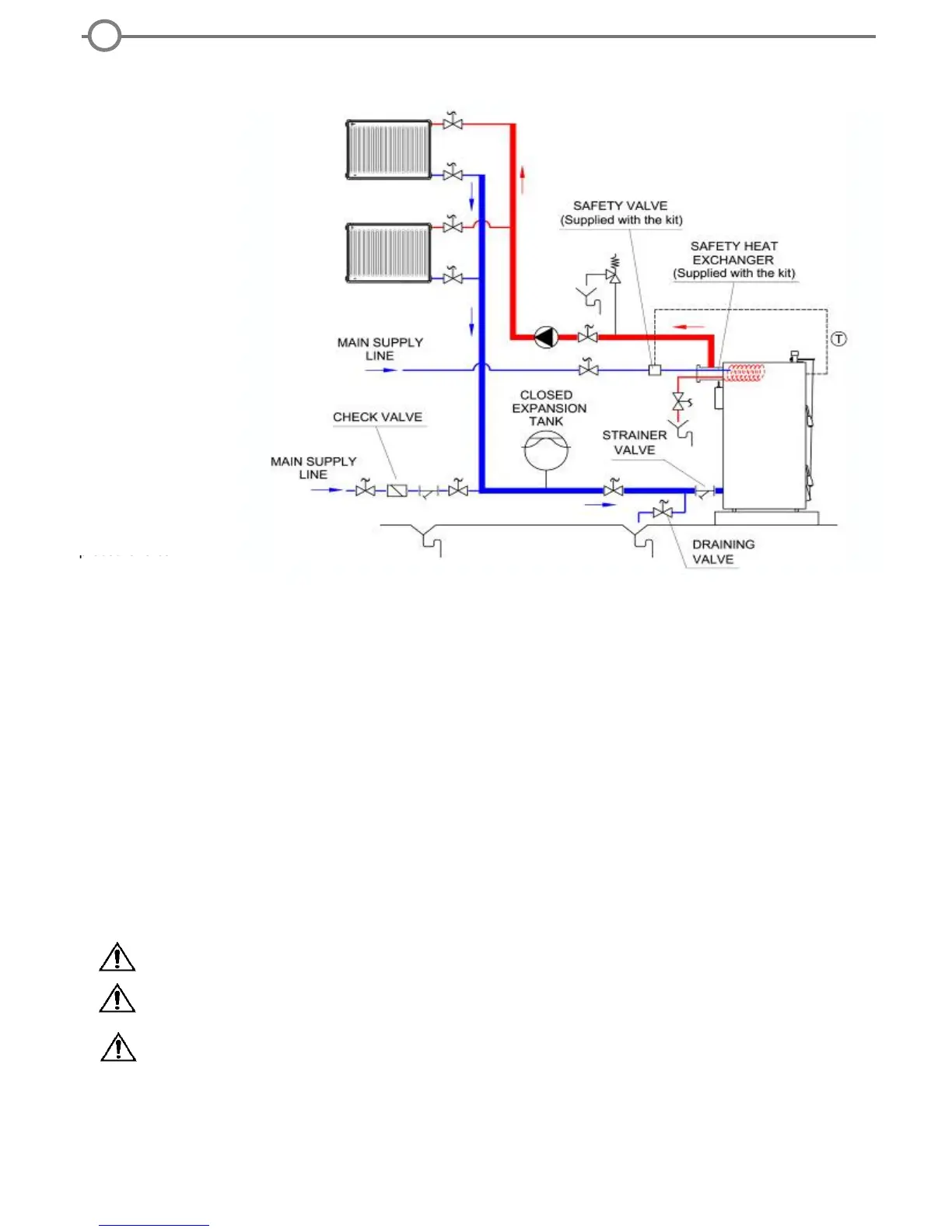
Pressurised hydraulic circuit
Dunatech boiler can be installed in a pressurised heating system if following scheme is referred with addition of the
safety heat exchanger kit which is supplied as a separate accessory.
maximum
p
ressure: 3 bar
8
p essu e 3 ba
Safety heat exchanger includes the following items:
1. Safety heat exchanger (copper serpantine integrated with outlet stub pipe)
2. Safety valve
3. Auxillary fittings
To install the safety heat exchanger system:
1. Remove the existing outlet stub pipe with flange of the boiler
2. Install the safety heat exchanger to the delivery port on the rear section
3. Attach the hot water delivery line to the port on top of the flanged pipe of the safety heat exchanger
4. Remove the bulb of boiler thermometer from the front section, and insert it into the pocket on the flanged
pipe of the safety heat exchange
r
5. Attach the safety valve on cold sanitary water line to the safety heat exchanger as shown in above scheme.
6. Insert the couple thermostat bulb of the safety valve inside the pocket on the front section of the boiler.
7. Drain the hot sanitary water outlet of the safety heat exchanger.
If the boiler water temperature exceeds 95 oC, thermostat of the safet valve lets cold sanitary water flows through the
serpantine of the safety heat exchanger. Serpantine with cold water circulating inside cools down the boiler water
temperature. When the boiler temperature decreases below the safe degree, safety valve shuts the cold sanitary
water circulation, and the boiler goes back to normal operation.
The valves on the sanitary connections of safety heat exchanger must always be kept open.
Dunatech can only be used with origial safety heat exchanger kit which is tested and approved for each
boiler model.
Cold water must never be delivered directly to boiler inlet in order to solve overheating porblems as this
will result in serious damage on boiler body. That application will end the warranty of the boiler.
8