EasyManua.ls Logo

Adp SEP-145 - SEP Unit Dimensions; Shipping

Default Icon
20 pages
Print Icon
To Next Page IconTo Next Page
To Next Page IconTo Next Page
To Previous Page IconTo Previous Page
To Previous Page IconTo Previous Page
Loading...
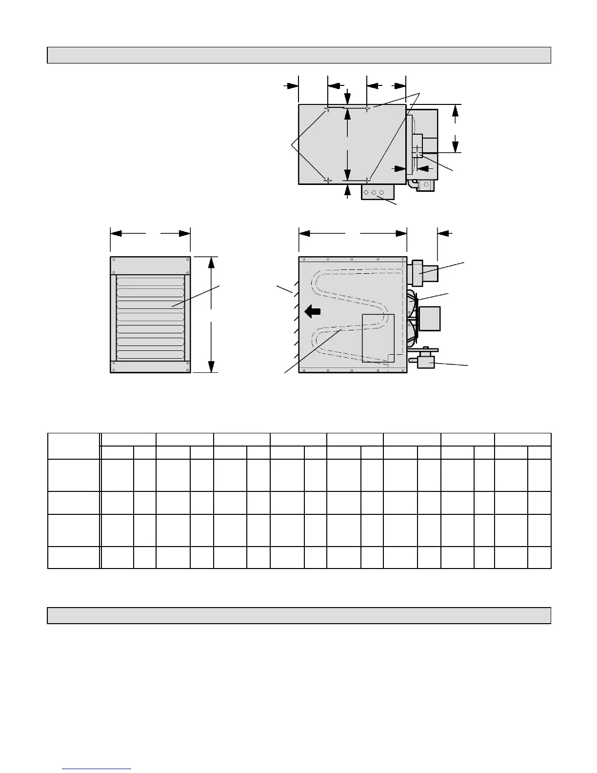
SEP Unit Dimensions
NOTE SEP models 100, 115, 145, 175 and 200
have a single fan. SEP models 230, 250, 300, 345
and 400 have two fans.
NOTE Two mounting nuts are furnished on
SEP models 100, 115, 145, 175 and 200. Four
mounting nuts are furnished on SEP models
230, 250, 300, 345 and 400 models.
*7-5/8
D
3/8" x 16 MOUNTING NUTS
(194)
FOR UNIT SUSPENSION
(13)
Additional
mounting nuts
F
furnished on
SEP230,
E
SEP250,
SEP300,
SEP345 and
G
SEP400 models
FLUE
only.
OUTLET
1/2
(13)
ELECTRICAL INLETS
C
B
END VIEW
TOP VIEW
A
H
COMBUSTION AIR
INDUCER
ADJUSTABLE
LOUVERS
DIRECT
AIR
DRIVE FAN
FLOW
GAS
HEAT
VALVE
EXCHANGER
SIDE VIEW
A
B
C
D
E
F
G
H
Unit
in.
mm
in.
mm
in.
mm
in.
mm
in.
mm
in.
mm
in.
mm
in.
mm
SEP-100
SEP-115
31-5/16
795
32-3/16
817
20-3/16
512
11-1/2
292
19-1/16
484
11-3/4
298
3-1/4
83
7-7/8
200
SEP145
SEP175
31-5/16
795
32-3/16
817
23-1/8
588
11-1/2
292
22-1/16
560
8−1/2
216
3-1/4
83
8−11/16
220
SEP200
SEP-230*
SEP250*
31-5/16
795
32-3/16
817
41-1/8
1045
3-11/16
97
40
1016
17-3/4
451
3-1/2
89
8-11/16
220
SEP300*
SEP-345*
31-5/16
795
32-3/16
817
41-1/8
1045
3-11/16
97
40
1016
17-1/2
445
3-1/2
89
9-13/16
248
SEP400*
*Unit contains dual fans.
Shipping
The heater is completely assembled and is shipped with installation and operating instructions, warranty certificate
and flue transition. Check the unit for shipping damage. The receiving party should contact the last carrier
immediately if any shipping damage is found.
2

Related product manuals