EasyManua.ls Logo

Advantage ADV120FDCH - Page 9

Default Icon
12 pages
Print Icon
To Next Page IconTo Next Page
To Next Page IconTo Next Page
To Previous Page IconTo Previous Page
To Previous Page IconTo Previous Page
Loading...
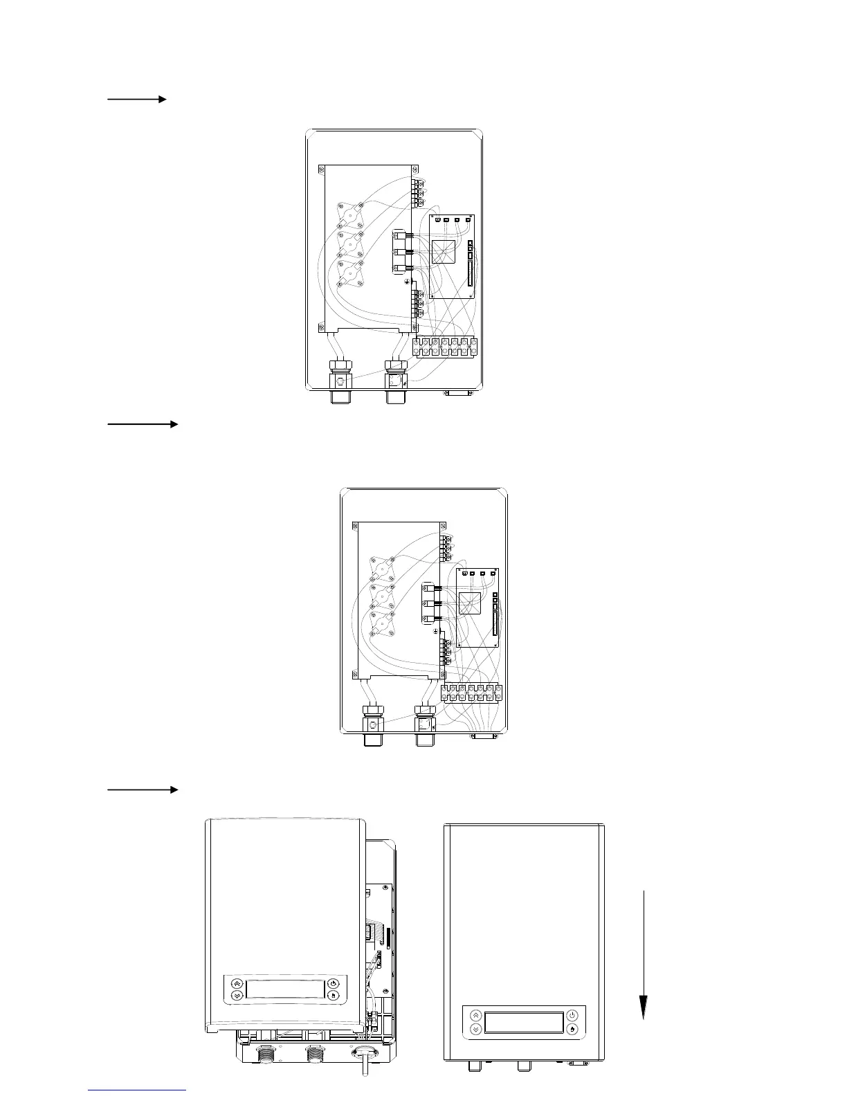
Fig 6 Fix the appliance to the bracket which was nailed to the wall, Make sure the unit bracket is secured
onto the back metal hanger correctly
Fig 7 Connect the cable to the terminal blocks, please notice the guidance logo below the terminal
blocks. ADV120FDCH will be connected to one circuit breaker, ADV150FDCH, ADV180FDCH, will be connected to
two circuit breakers, ADV210FDCH, ADV240FDCH, ADV270FDCH will be connected to three circuit breakers.
Fig 8 Please plug in the screen row line plug, then affix the front cover on appliance, screw in place.
E L1 L2 L1 L2 L1 L2
E L1 L2 L1 L2 L1 L2