EasyManua.ls Logo

AEG 50700 - Dishwasher Water Drain

AEG 50700
40 pages
Print Icon
To Next Page IconTo Next Page
To Next Page IconTo Next Page
To Previous Page IconTo Previous Page
To Previous Page IconTo Previous Page
Loading...
Installation and Connection Instructions
33
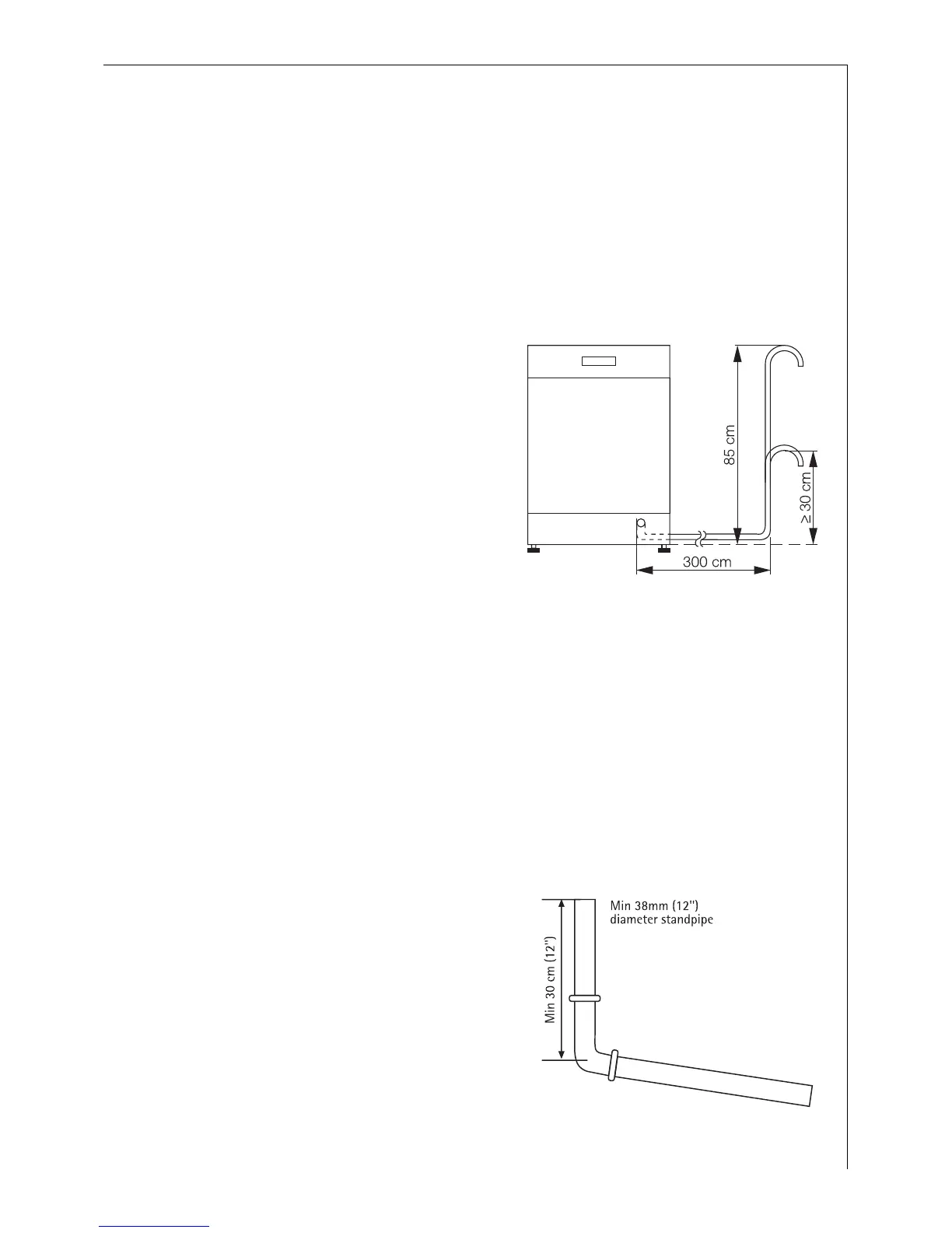
Water drain
Drain hose
1
The drain hose must not be kinked, crushed or entangled.
Connecting the drain hose:
Maximum permitted height: 1 metre.
Minimum required height 30 cm above the lower edge of the machine.
Extension hoses
Extension hoses are available from
AEG Service Force. The internal
diameter of the extension hoses
must be 19 mm to ensure that the
function of the appliance is not
impeded.
Hoses may be laid a maximum of
3 metres horizontally; the maximum
permitted height for the connection
for the drain hose is then 85 cm.
Sink outlet connection
The outlet of the drain hose (ø 19 mm) fits all commonly available
sink outlet spigot types. The outer diameter of the spigot connection
must be at least 15 mm.
The drain hose must be fixed to the sink outlet connection using the
hose clamp supplied.
If the dishwasher is fitted at a high position
If the dishwasher is installed at a high level, and the drainhose connec-
tion is less than 30 cm from the bottom of the appliance, adapter kit ET
111099520 must be fitted. This is available from Customer Service.
Discharging into a standpipe
When discharging into a standpipe,
the upright standpipe should have a
minimum, length of 30 cm (12“) from
the bottom of the elbow to the top
of the pipe (see diagram). Make sure
that it is designed in such a way that
the end of the drain hose cannot be
covered with water.

Related product manuals