EasyManua.ls Logo

AEG NSC7G751ES - Appliance Dimensions and Space

AEG NSC7G751ES
28 pages
Print Icon
To Next Page IconTo Next Page
To Next Page IconTo Next Page
To Previous Page IconTo Previous Page
To Previous Page IconTo Previous Page
Loading...
WARNING!
Refer to installation
instruction document to
install your appliance.
WARNING!
Fix the appliance in
accordance with installation
instruction document to
avoid a risk of instability of
the appliance.
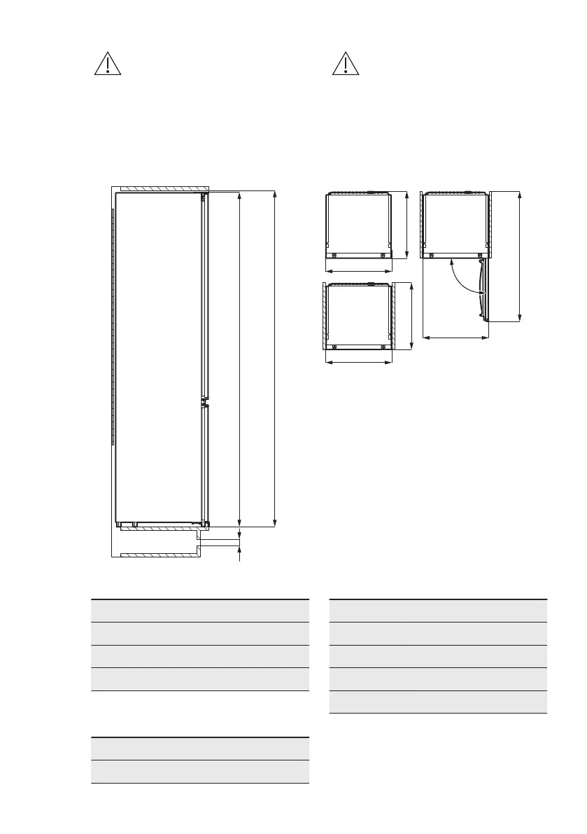
3.1 Dimensions
B
A
H1
W1
D1
W2
D2
W3
D3
9
Overall dimensions ¹
H1 mm 1884
W1 mm 696
D1 mm 549
¹ the height, width and depth of the
appliance without the handle
Space required in use ²
H2 (A+B) mm 1923
Space required in use ²
W2 mm 696
D2 mm 561
A mm 1894
B mm 29
² the height, width and depth of the
appliance including the handle, plus the
space necessary for free circulation of
the cooling air
ENGLISH 7

Related product manuals