EasyManua.ls Logo

AEG TSC7G181DS - Installation

AEG TSC7G181DS
80 pages
Print Icon
To Next Page IconTo Next Page
To Next Page IconTo Next Page
To Previous Page IconTo Previous Page
To Previous Page IconTo Previous Page
Loading...
3. INSTALLATION
WARNING!
Refer to Safety chapters.
WARNING!
Refer to installation
instruction document to
install your appliance.
WARNING!
Fix the appliance in
accordance with installation
instruction document to
avoid a risk of instability of
the appliance.
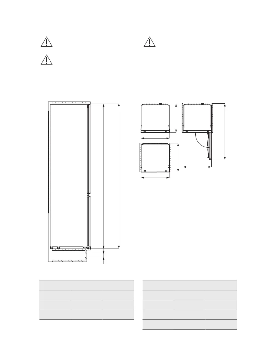
3.1 Dimensions
B
A
H1
W1
D1
W2
D2
W3
D3
9
Overall dimensions ¹
H1 mm 1772
W1 mm 546
D1 mm 549
¹ the height, width and depth of the
appliance without the handle
Space required in use ²
H2 (A+B) mm 1816
W2 mm 546
D2 mm 551
A mm 1780
ENGLISH 7

Related product manuals