EasyManua.ls Logo

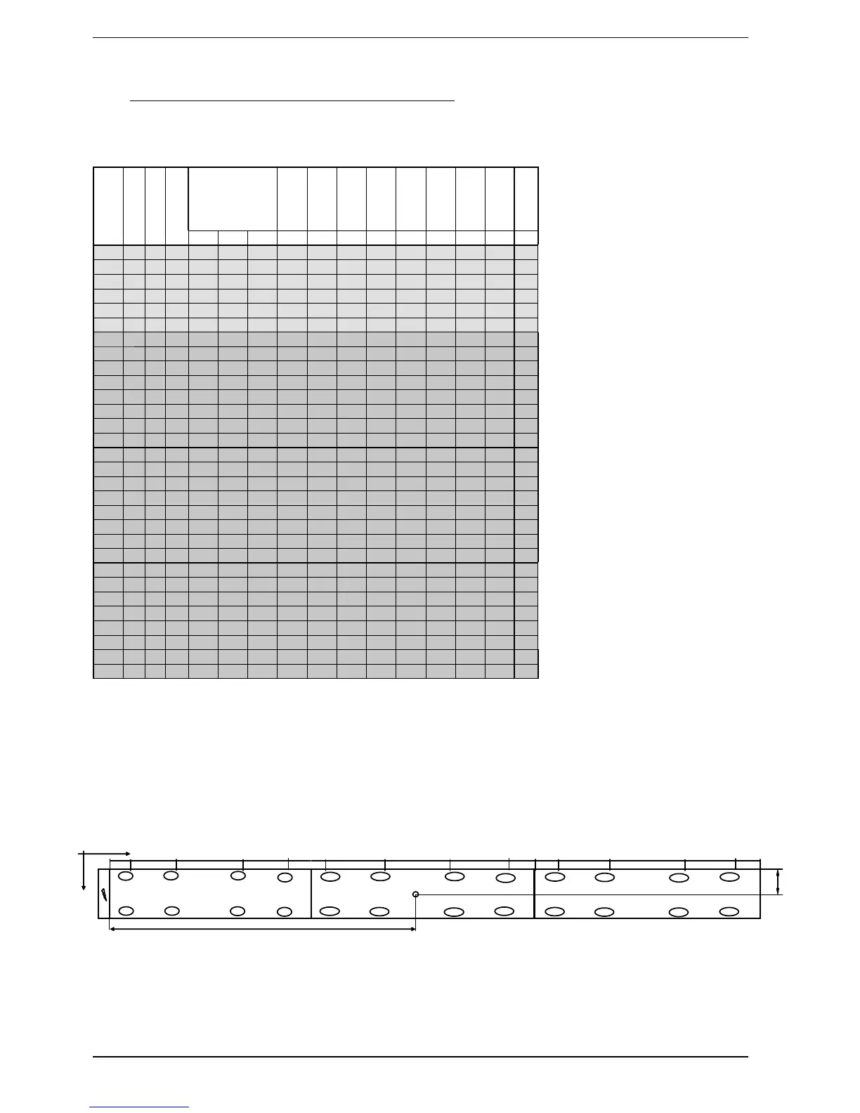
AERMEC 1251 - 19.4.1. DISTRIBUTION OF PERCENTAGE WEIGHTS ON SUPPORTING POINTS FOR THE INSTALLATION OF THE AVX KIT (ACCESSORY)

AERMEC 1251
92 pages
Print Icon
To Next Page IconTo Next Page
To Next Page IconTo Next Page
To Previous Page IconTo Previous Page
To Previous Page IconTo Previous Page
Loading...
INSPY. 1003. 4138305_03
56
NS
Heat recovery
Version
Hydronic kit
(1)
Weight and centre
of gravity
when empty
(kg)
Support 1
Support 2
Support 3
Support 4
Support 5
Support 6
Support 7
Support 8
Kit AVX
kgx y%%%%%%%%
2652 ° °/L 00 5320 2585 1238
10 14 13 16 12 15 9 11 511
2802 ° °/L 00 5330 2585 1238
10
14 13 16 12 15
9 11 511
2652 D °/L 00 5380 2585 1238
10 14 13 16 12 15 9 11 511
2802 D °/L 00 5390 2585 1238
10
14 13 16 12 15
9 11 511
2652 T °/L 00 5820 2571 1229
10.2 12.9 13.3 16.9 12.1 15.3 8.5 10.8 511
2802 T °/L 00 5820 2571 1229
10.2
12.9 13.3 16.9 12.1 15.3
8.5 10.8 511
2101 ° A/E 00 4920 2222 1212
121524292279510
2401 ° A/E 00 5150 2235 1210
12
14 24 29 2 2
8 9 510
2002 ° A/E 00 4700
2642 1230 10 13 12 16 12 15 10 12 511
2202 ° A/E 00 5270
2593 1236 10 13 13 16 12 15 9 12 511
2352 ° A/E 00 5390 2592 1234
10 13 13 16 12 15 9 12 511
2502 ° A/E 00 5500 2591 1233
10 13 13 16 12 15 9 12 511
2652 ° A/E 00 5510 2591 1233
10 13 13 16 12 15 9 12 511
2802 ° A/E 00 5520 2591 1233
10 13 13 16 12 15 9 12 511
2101 D A/E 00 4970 2222 1212
12 15 24 29 2 2 7 9 510
2401 D A/E 00 5210 2235 1210
12
14 24 29 2 2
8 9 510
2002 D A/E 00 4740
2642 1230 10 13 12 16 12 15 10 12 511
2202 D A/E 00 5320
2593 1236 10 13 13 16 12 15 9 12 511
2352 D A/E 00 5440 2592 1234
10 13 13 16 12 15 9 12 511
2502 D A/E 00 5550 2591 1233
10 13 13 16 12 15 9 12 511
2652 D A/E 00 5570 2591 1233
10 13 13 16 12 15 9 12 511
2802 D A/E 00 5580 2591 1233
10 13 13 16 12 15 9 12 511
2101 T A/E 00 5280 2208 1214
11.4 14 25.2 31 1.4 1.7 6.9 8.4 510
2401 T A/E 00 5660 2215 1203
11.3
13.6 25.5 30.8 1.7 2.1
6.8 8.2 510
2002 T A/E 00 5150
2588 1217 10 12.4 14.7 18.3 10.9 13.5 9 11.2 511
2202 T A/E 00 5500
2547 1210 10.7 13.1 14.5 17.7 10.8 13.3 8.9 11 511
2352 T A/E 00 5870 2578 1227
10.2 12.8 13.3 16.8 12.2 14.5 8.5 10.8 511
2502 T A/E 00 6000 2577 1224
10.2 12.8 13.4 16.9 12.2 15.4 8.5 10.6 511
2652 T A/E 00 6010 2579 1225
10.1 12.7 13.4 16.8 12.3 15.4 8.5 10.8 511
2802 T A/E 00 6020 2577 1226
10.1 12.8 13.4 16.9 12.2 15.4 8.5 10.7 511
(1) the weight of the pumps to be added
to the version without hydronic kit
PA 69 kg
PB 138 kg
PC 75 kg
PD 150 kg
PE 91 kg
PF 182 kg
PG 100 kg
PH 200 kg
PJ 108 kg
PK 216 kg
19.4.1. DISTRIBUTION OF PERCENTAGE WEIGHTS ON SUPPORTING
POINTS FOR THE INSTALLATION OF THE AVX KIT (ACCESSORY)
Lato evaporatori
Lato compressori
Lato evaporatori
Lato compressori
Lato evaporatori
Lato compressori
0
x
y
YG
XG
1
2
3
5
7
4
6
8
9
11
13
15
10
12
14
16
17
19
21
23
18
20
22
24

Table of Contents

Related product manuals