EasyManua.ls Logo

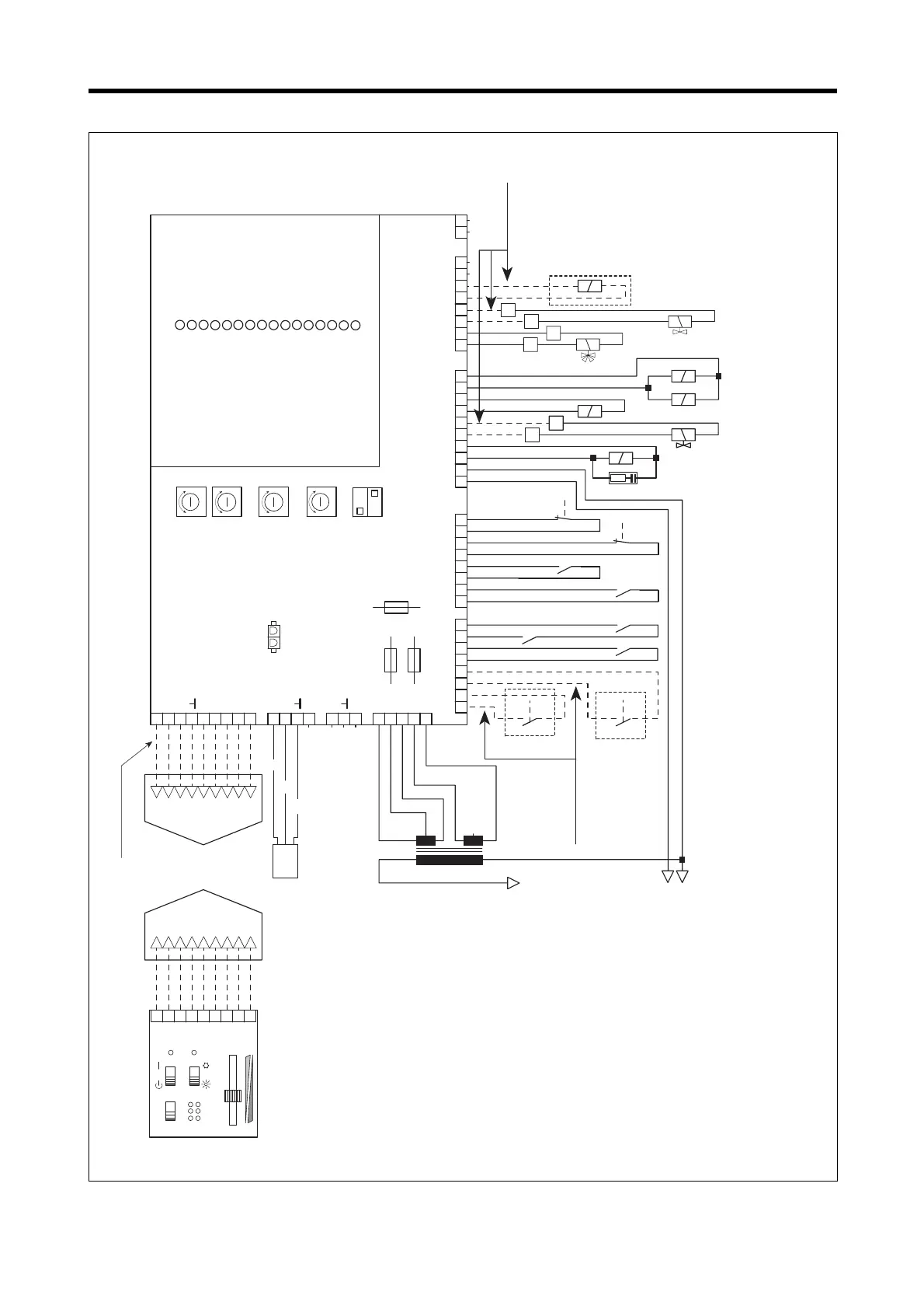
AERMEC ASH 5 - Circuito Ausiliario • Auxiliary Circuit

AERMEC ASH 5
56 pages
Print Icon
To Next Page IconTo Next Page
To Next Page IconTo Next Page
To Previous Page IconTo Previous Page
To Previous Page IconTo Previous Page
Loading...
51
CC
CC
AA
AA
RR
RR
AA
AA
TT
TT
TT
TT
EE
EE
RR
RR
II
II
SS
SS
TT
TT
II
II
CC
CC
HH
HH
EE
EE
FF
FF
EE
EE
AA
AA
TT
TT
UU
UU
RR
RR
EE
EE
SS
SS
Gli schemi elettrici sono soggetti ad aggiornamento; è opportuno fare riferimento allo schema elettrico allegato all'apparecchio.
Wiring diagrams may change for updating. It is therefore necessary to refer always to the wiring diagram inside the units.
CIRCUITO AUSILIARIO • AUXILIARY CIRCUIT
TR
0
220
0
0
15
15
24
1
2
3
4
5
1
2
3
15V
15V
24V
0V
0V
+VL2
SA/REM
T 1A
T 1A
1
2
3
4
+
-
OUT
1
2
3
4
5
SINC
DATI
+VL2
START
CFA
ON/OFF
PT
SA
(M1)
6
7
8
9
SC
IS
-4
0
FS
10 20
BM
15 21
ZM
1
6
S
I
TV
T 0,5A
GN
ACC
12
3
4
56
7
8
TE
TE
PE
PE
TC
TC
TVC
TVC
12
3
4
56
7
8
TVE
TVE
MT
MT
BP
BP
AP
AP
220V
N
N
N
N
N
CP
VSL
MVE
MVC
12
3
4
56
7
89
10
12
3
4
56
7
8
N
N
N
VI
VSB
BR/RE
N
RB
12
SCD
9 x 0,5 mm
2
TE
>q
PE
>P
CRE
MTCC
MTVC1MTVC2
MTVE
MT
BP
AP
>P
<P
CC
CVE
VSL
CVC1
CVC2
RC
R
BL
GI
SH
SS
5
6
VI
VSB
9
SA
PT
SINC
DATI
START
(M1) SC
SCD
0/1
C/F
GN
+VL2
1
7
S
T
A
R
T
A
8
7
6
5
4
3
2
1
Ø=1 mm
2
Ø=1 mm
2
MT = Solo per modelli 10 e 15 MTVC1 - MTVC2 = Uno solo per i modelli 3, 5 e 7 SS = Solo per modelli ASH
Only for 10 and 15 modeles CVC1 - CVC2 One only for models 3, 5 and 7 VI - SSB Only for ASH

Related product manuals