EasyManua.ls Logo

AERMEC FCX 50 U - Page 81

AERMEC FCX 50 U
Print Icon
To Next Page IconTo Next Page
To Next Page IconTo Next Page
To Previous Page IconTo Previous Page
To Previous Page IconTo Previous Page
Loading...
81
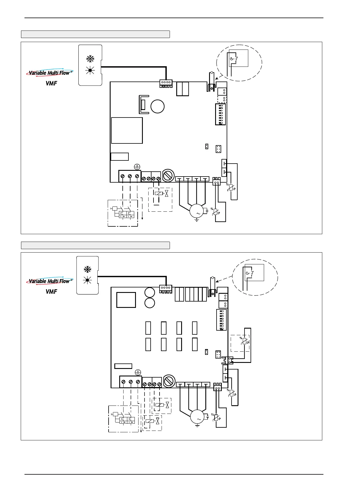
FCX B-U-UA-UE
IFCXBULJ 1412 - 6456062_01
230V 50Hz
10k
PE
SA
SW
MV
M
1
MAX
MED
MIN
BL
NE
MA RO
+
VMF-E0
CN9
JP1
CN11
PF2
C1
T1
C7
CN1
CN7-B CN7-A
CN10-B CN10-A
CN17
CN27
1-TX-RX
2- GND
SW
SA
N V3 V2 V1
L N
Y2
N
Y1
N
ON
1 2 3 4 5 6 7 8
DIP
1
1
CE
1
(SP)
1
VMF-E2
VMF-E2H
VMF-E4
10k
VC/F
L N
IG
CN8
Dis. 5152700_00
MS
VMF-E1
VMF-E2
VMF-E2H
VMF-E4
230V 50Hz
10k
SA
MV
M
1
MAX
MED
MIN
BL
NE
MA RO
10k
+
CN9
JP1
CN11
PF2
C8
T1
C1
CN1
CN7-B CN7-A
CN10-B CN10-A
CN17
CN27
1-TX-RX
2- GND
SW
SA
N V3 V2 V1
L N
Y2
N
Y1
N
ON
1 2 3 4 5 6 7 8
DIP
1
1
CE
1
SP
1
CN8
+
CN18CN19 CN21 CN28
CN26CN25CN22CN23
CN14
SW1
2- B- 485
1- A-485
4-V+-Pan
3- GND-485
5-GND-Pan
CN16
C2
SW
SW1
SLOT EXPANSION
L N
IG
PE
VF
VC
MS
VMF-EO + VMF-E2 / VMF-E4
VMF-E1 + VMF-E2 / VMF-E4

Related product manuals