EasyManua.ls Logo

AERMEC NXW 0800 - Page 37

AERMEC NXW 0800
56 pages
Print Icon
To Next Page IconTo Next Page
To Next Page IconTo Next Page
To Previous Page IconTo Previous Page
To Previous Page IconTo Previous Page
Loading...
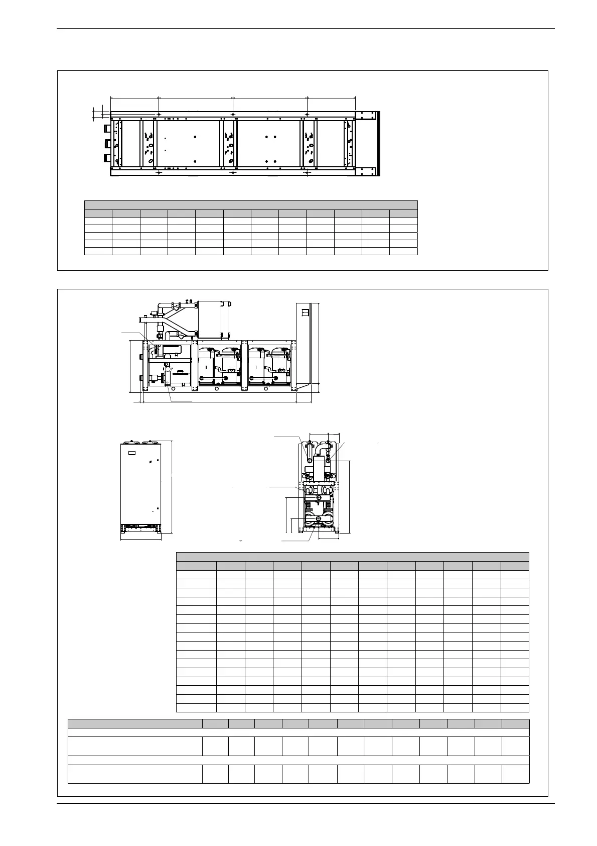
NXW FROM 0500 TO 1400 VERSION WITH PUMP
A
D
E
B
B
A
Uscita evaporatore
Uscita condensatore
Ingresso condensatore
Ingresso evaporatore
A
O
N
I
P
Q
L
H
E
C
G
F
75
B
Pompe condensatore
Pompe evaporatore
POSITION
Model 0500 0550 0600 0650 0700 0750 0800 0900 1000 1250 1400
A 1600 1600 1600 1600 1600 1600 1600 1600 1600 1600 1600
B 1035 1035 1035 1035 1035 1035 1035 1035 1035 1035 1035
C 2644 2644 2644 2644 2644 2644 3044 3044 3044 3044 3044
D 382 382 382 382 382 382 374 400 - - -
E 410 410 410 410 410 410 422 425 410 410 410
F 800 800 800 800 800 800 800 800 800 800 800
G 369 369 369 369 369 369 - 1850 1850 1850 1850
H 3174 3174 3174 3174 3174 3174 1374 1374 1440 1440 1440
I 343 343 343 343 343 343 343 357 367 367 367
L 225 225 225 225 225 225 225 225 216 216 216
M 1494 1494 1494 1494 1494 1494 1494 1494 - - -
N 300 300 300 300 300 300 300 300 300 300 300
O 175 175 175 175 175 175 175 175 175 175 175
P 838 838 838 838 838 838 858 858 706 706 706
Q 264 264 264 264 264 264 260 260 288 288 288
O ------175----
AVX
Model 0500 0550 0600 0650 0700 0750 0800 0900 1000 1250 1400
A 390 390 390 390 390 390 600 600 600 600 600
B 932 932 932 932 932 932 922 922 922 922 922
C 390 390 390 390 390 390 600 600 600 600 600
D 3535353535353535353535
E 7070707070707070707070
Model U.M. 0500 0550 0600 0650 0700 0750 0800 0900 1000 1250 1400
EVAPORATOR (PLATES)
Hydraulic connection
Victaulic in/out
Ø 2"1/2 2"1/2 2"1/2 2"1/2 2"1/2 2"1/2 2"1/2 2"1/2 3" 3" 3"
CONDENSER (PLATES)
Hydraulic connection
Victaulic in/out
Ø 2"1/2 2"1/2 2"1/2 2"1/2 2"1/2 2"1/2 2"1/2 2"1/2 3" 3" 3"
INLET EVAPORATOR
INLET CONDENSER
OUTLET CONDENSER
OUTLET EVAPORATOR
37
INXWPY. 1004. 4438805_00

Table of Contents

Related product manuals