EasyManua.ls Logo

Agrison 80HP CDF - Page 112

Default Icon
204 pages
Print Icon
To Next Page IconTo Next Page
To Next Page IconTo Next Page
To Previous Page IconTo Previous Page
To Previous Page IconTo Previous Page
Loading...
操作说明
Operator Instruction
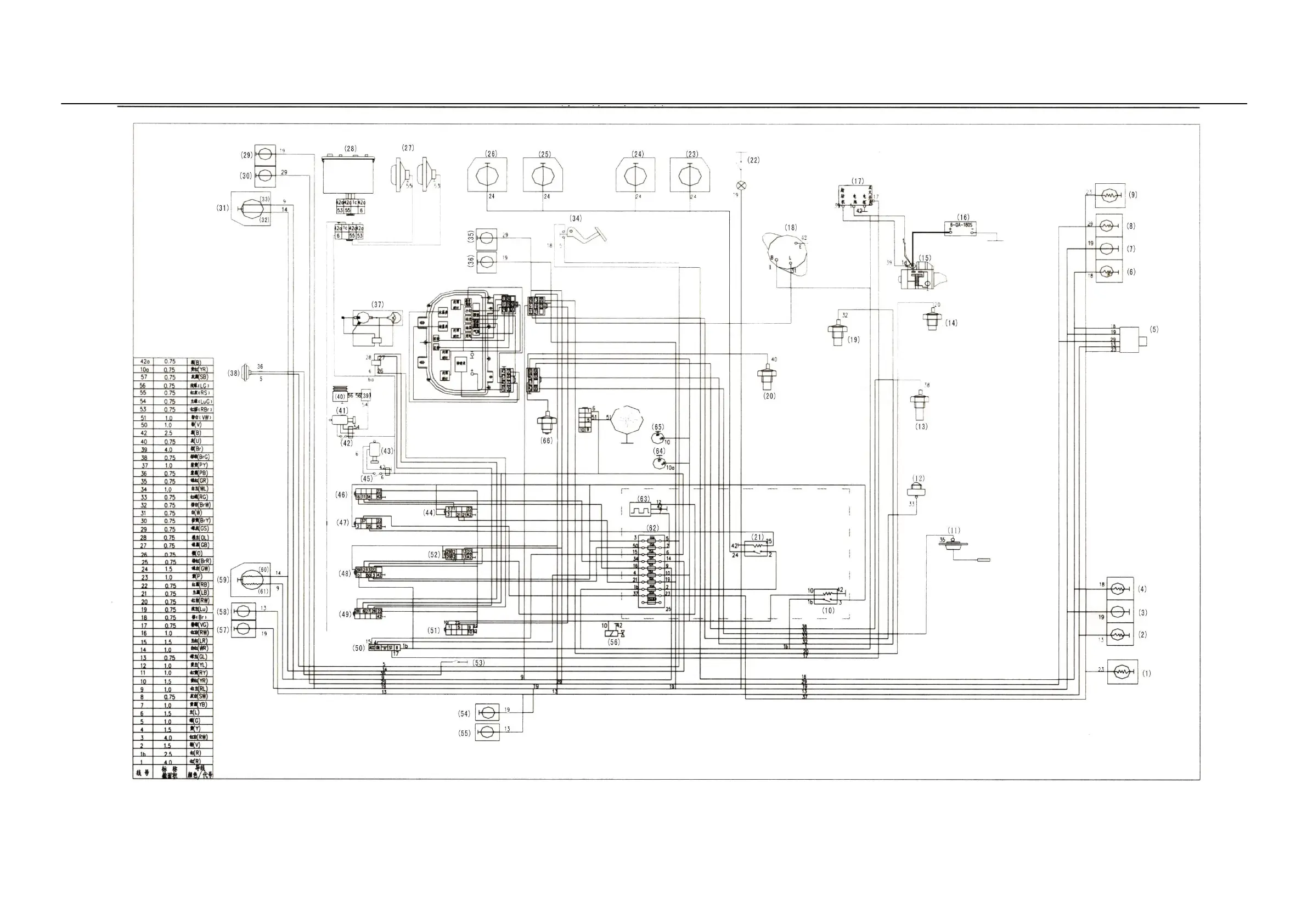
4-49 电气原理图
Fig.4-49Electrical schematics

Table of Contents

Related product manuals