EasyManua.ls Logo

Aiphone JF-2MED - Page 5

Aiphone JF-2MED
16 pages
Print Icon
To Next Page IconTo Next Page
To Next Page IconTo Next Page
To Previous Page IconTo Previous Page
To Previous Page IconTo Previous Page
Loading...
- 5 -
English Français Nederlands
ON
OFF
123456
ON
SW2
JF-2HD
JF-2SD
OFF
JF-2SD
ON
OFF
123456
ON
SW2
#3 #3
E
FS
PK
SW
SW
[2]
[6]
[5]
(GR)
(YE)
(BR)
(RD)
(OG)
(BL)
(PR)
(GY)
(WH)
#3
Ø 1.2 mm
100~300 m
50 m
50 m
A
B (max.)
C (max.)
16 AWG
330'~980'
165'
165'
Ø 1.0 mm
100~200 m
50 m
50 m
18 AWG
330'~650'
165'
165'
A1
A2
+
-
A1
A2
+
-
B1
B2
A1
A2
A
IP
H
O
N
E
JF
-D
A
AB
C
U
s
e
T
H
E
S
A
M
E
V
O
L
T
A
G
E
p
o
w
e
r
s
u
p
p
l
y
a
s
M
a
s
t
e
r
s
ta
tio
n
's
.
t
o
D
o
o
r
s
t
a
t
i
o
n
t
o
M
a
s
t
e
r
s
t
a
t
i
o
n
(
O
b
s
e
r
v
e
p
o
l
a
r
i
t
y
)
D
C
2
4
V
o
r
1
8
V
A
1
A
2
B
1
B
2
+
-
JF-2MEDJBW-BA
JF-DA
JF-DV
JF-DVF
1 1
1
PS18
2
NP
2
P
2
P
-
+
-
+
ON
SW1
ON
SW1
JF-2HD
ON
4
4
Ye s
No
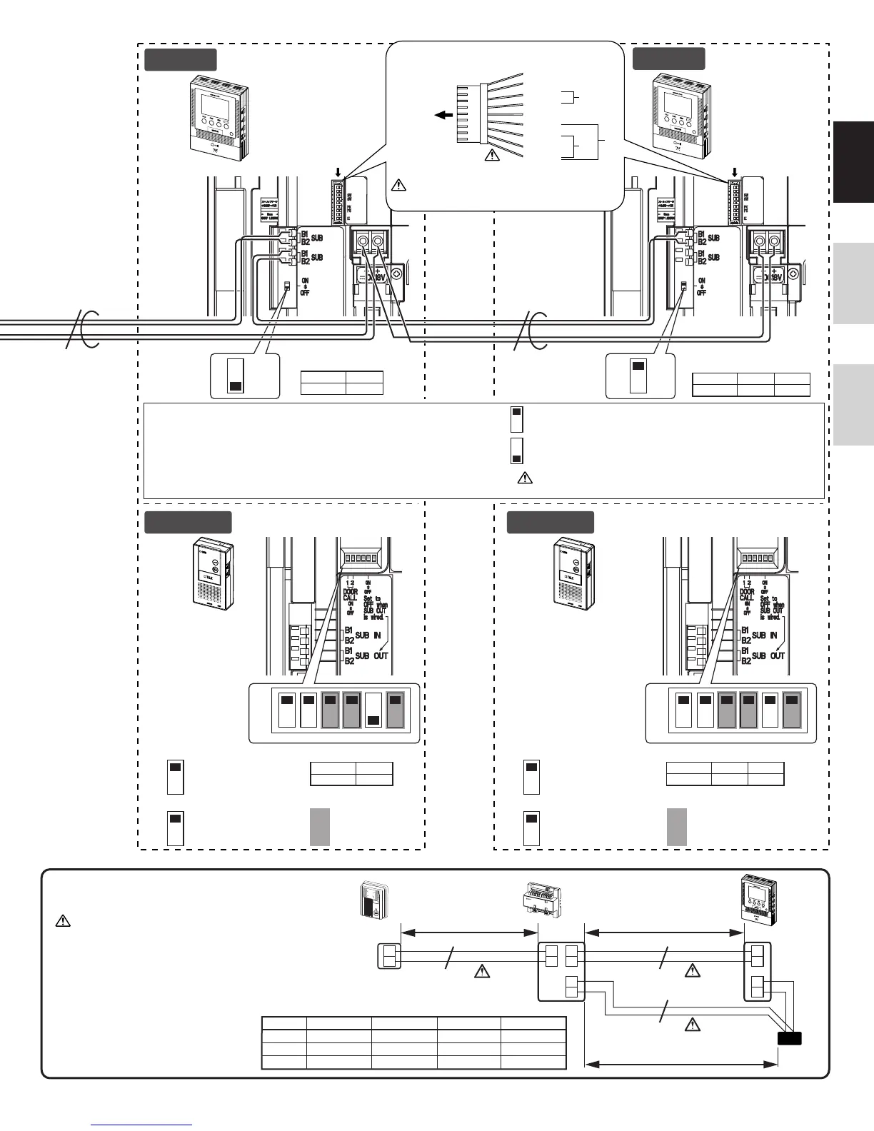
Not used.Call-in from door station 2
Ye s
No
Not used.Call-in from door station 2
Ye s
No
Call-in from door station 1
SW5
1st unit 2nd unit
JF-2MED JF-2SD
ON
Ye s
No
Call-in from door station 1
JF-2MED JF-2SD
OFF
JF-2SD
ON
SW5
1st unit 2nd unit 3rd unit
Sub station Sub station
Sub monitor station
NP: Non-polarized
P: Polarized
Terminal setting (2nd unit)
Setting changes are only required when a 3rd unit is connected.
Put the switch in the ON position, and terminate the furthest sub station.
If the terminal setting is incorrect, the monitor station and sub station will
make a warning sound when they are operated.
Further, the unit may not operate correctly or the video image may distort.
ON side when no 3rd unit is connected
(leave in the factory settings)
OFF side when a 3rd unit is connected
After changing the setting, be sure to turn the power of the
monitor station on again.
OFF
ON
To prevent shorts, be sure to cut unused lead wires
at the bottom and insulate the ends.
Option connector
Sub monitor station
1st unit 2nd unit
JF-2MED JF-2HD
ON
JF-2MED
JF-2HD
OFF
JF-2HD
ON
1st unit 2nd unit 3rd unit
Optional long distance adaptor JBW-BA
Use JBW-BA when the wiring distance between the
video door station and JF-2MED is within the distance
range shown in the table.
1. Use PE (polyethylene) insulated cable.
Do not use PVC.

Related product manuals