EasyManua.ls Logo

AirTech DD1012AM-N - Page 3

Default Icon
54 pages
Print Icon
To Next Page IconTo Next Page
To Next Page IconTo Next Page
To Previous Page IconTo Previous Page
To Previous Page IconTo Previous Page
Loading...
P/N 466-5631-ML • REV C • ISS 15JUL22 3 / 54
12
13
14
Single zone EOL
Zone state
Value
Default
Tamper (short)
0 Ω
0 Ω
Normal
Rt
4.7 kΩ
Alarm
Rt+Ra
9.4 kΩ
Fault
Rt+Rf
14.7 kΩ
AM*
Rt+Ra+Rf
19.4 kΩ
Tamper (open)
* SW2-4 must be set to On.
EN: Installation Sheet
Description
DD1012AM(-D)-N is a dual AM motion sensor.
It combines the patented PIR mirror optics technology with the
patented Range Controlled Radar technology.
Installation guidelines
See Figure 1.
The detector is intended to be mounted on walls but can also
be mounted on ceilings by using a mounting bracket.
Use the following guidelines to determine the best location to
install the detector.
Mount the detector so the expected movement of an
intruder is across the detection pattern (see Figure 3).
Mount the detector at a stable surface. For the allowed
mounting height, see Specificationson page 7.
Do not mount the detector within 0.5 m of metallic objects
or within 1.5 m of fluorescent lights.
Do not place objects in front of the detector that may
prevent a clear line of sight.
Place detectors at least 6 m apart, and use the short-
range setting to avoid interference, when mounting
detectors face to face.
The dual technology processing of this detector is very
resistant to false alarm hazards. However, avoid potential
causes of instability, such as:
PIR hazards:
Direct sunlight on the detector
Heat sources within the detector field of view
Strong air draughts onto the detector
Animals in the field of view
Obscuring the detector field of view with large objects,
such as furniture
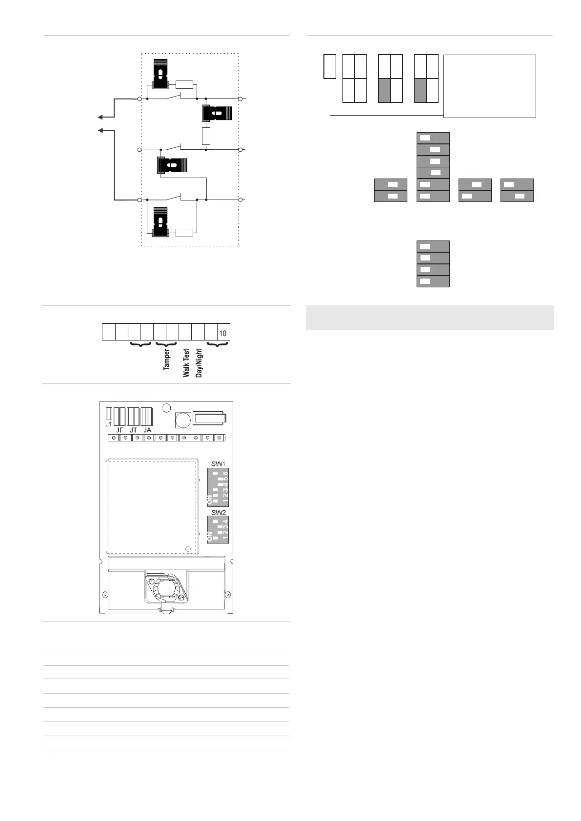
JA
JT
3
6
4
5
Ra
Rt
JF
Rf
Fault (4)
10 9
J1
Alarm (1)
Tamper (3)
Alarm zone (2)
Off
On
Isolated fault
contact
3 resistor single
zone
(Terminal 3-10)
=
=
J1
J1
JF JT JA
2 2K
3K
10K
4 7K
1K
2 2K
4 7K
5 6K
1K
2 2K
4 7K
5 6K
1
2
3
4
1
2
1
2
1
2
3
4
5
6
1
2
1
2
SW1 - Generic settings
LED ON
Remote OFF
Auto Rem. Test ON
Positive Polarity
LED OFF
Remote ON
Negative Polarity
Range
SW2 - AM/Fault settings
Mask to alarm and
fault relay
Auto reset
Advanced AM sens.
AM Day mode only
Mask to fault relay
only
Authorized reset
Standard AM sens.
AM Day and Night
4 m 12 m 9 m6 m
Auto Rem. Test OFF
A
l
a
r
m
G
N
D
+
1
2
V
F
a
u
l
t
1 3
4
5
2 6
7
8 9