EasyManua.ls Logo

Alde 3010 213 - Page 101

Alde 3010 213
Print Icon
To Next Page IconTo Next Page
To Next Page IconTo Next Page
To Previous Page IconTo Previous Page
To Previous Page IconTo Previous Page
Loading...
101
POL
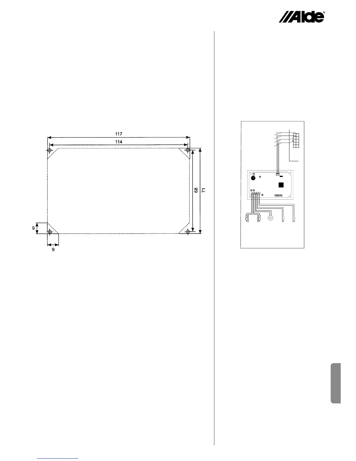
MONTAŻ PANELU KONTROLNEGO
Wybierz miejsce lokalizacji panelu kontrolnego mając na uwadze dłu-
gość przewodu pomiędzy panelem a urządzeniem.
Panel kontrolny powinien być zamontowany przynajmniej 1 m ponad
podłogą, ale również nie w bezpośredniej bliskości sufitu. Panel nie
powinien być zamontowany na zewnętrznej ścianie lub blisko urzą-
dzeń, które wydzielają ciepło np. CD playera, lodówki, lampy, gdyż
może to powodować niewłaściwy odczyt temperatury.
Jeśli jednak panel kontrolny musi być zamontowany w pobliżu urzą-
dzeń emitujących ciepło, to do panelu kontrolnego powinien być pod-
łączony zewnętrzny czujnik temperatury. Szczegóły związane z wyko-
naniem otworów montażowych znajdują się w instrukcji dołączonej do
panela kontrolnego.
1
2
3
4
5
6
7
8
9
10
Czarny
Czerwony
Niebieski
Szary
123 45
H
Połączenia przewodów pomiędzy
urządzeniem a panelem kontrolnym
Podłączenie wyposażenia dodatkowego
zgodnie z rys. H. Kolory przewodów ozna-
czają:
Rys H
Czujnik zewnętrzny – niebieski (F)1.
Czujnik zdalny – biały (G)2.
Ochrona przed przeciążeniem – zielony (E)3.
Wyłącznik okienny– czerwony (I)4.
Zewnętrzny start urządzenia – żółty (D)5.

Related product manuals