EasyManua.ls Logo

Alemite 7342 - Page 7

Default Icon
12 pages
Print Icon
To Next Page IconTo Next Page
To Next Page IconTo Next Page
To Previous Page IconTo Previous Page
To Previous Page IconTo Previous Page
Loading...
High-Capacity Reel SER 7342
Alemite LLC 7 Revision (10-13)
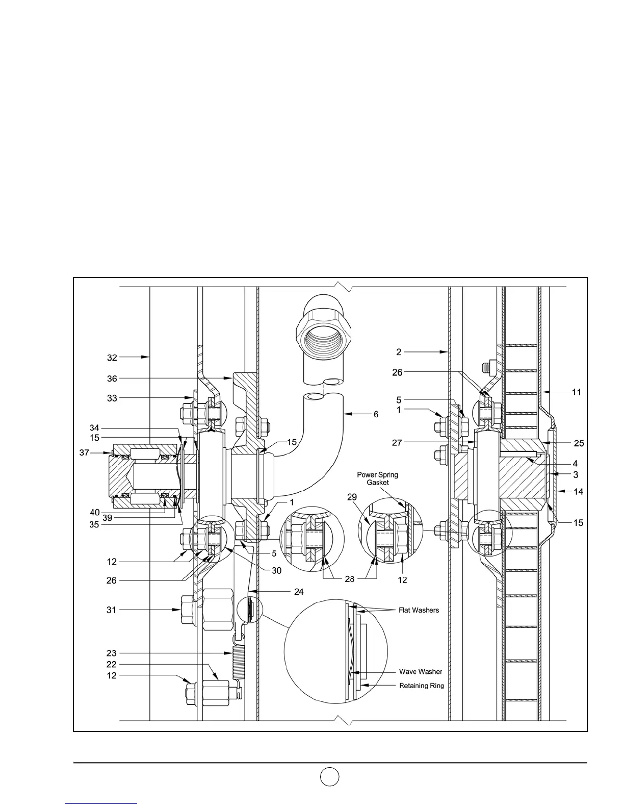
Hose Guide
28. Install each Roller Assembly (19) onto each Post and Shaft
Assembly (17).
29. Install each Roller Assembly (20) onto each Post and Shaft
Assembly (18).
30. Install each Roller and Post subassembly into one another
to create a rectangle.
31. Install the Roller and Post subassembly into Hose Guide
Plate (16).
32. Install the hose guide assembly into each Arm.
33. Secure the hose guide assembly to the Arms with Nuts (12).
34. Tighten the Long Arm Nuts, the Short Arm Screws, and the
hose guide assembly Nuts securely.
Swivel Assembly
35. Onto the Shaft and Riser Assembly install:
Retaining Ring (15)Qty 1
•Washer (34)Qty 1
Wave Washer (35)Qty 1
•O-Ring (39)Qty 2
T-Seal (40)Qty 2
36. Install Swivel Body (38) onto the Shaft and Riser
Assembly.
Use care not to damage the seals.
37. Install Retaining Ring (37) onto the Shaft and
Riser Assembly.
38. Check to ensure the Swivel Body moves freely.
Figure 3 High-Capacity Reel Model 7342 - Section View (w/o Reducing Bushing)