EasyManua.ls Logo

Allen-Bradley PowerFlex 20-750-20COMM - Page 59

Allen-Bradley PowerFlex 20-750-20COMM
302 pages
Print Icon
To Next Page IconTo Next Page
To Next Page IconTo Next Page
To Previous Page IconTo Previous Page
To Previous Page IconTo Previous Page
Loading...
Rockwell Automation Publication 750-IN001O-EN-P - October 2014 59
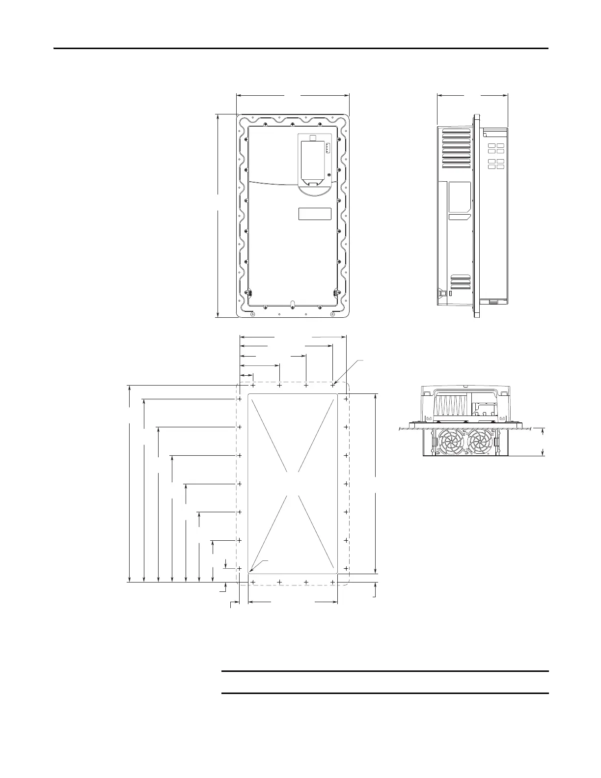
Lift and Mount the Drive Chapter 3
Figure 21 - Flange Mount, Frame 5
Dimensions are in millimeters and (inches).
211.9
(8.34)
340.0
(13.39)
611.0
(24.06)
259.0 +1.8/-0.0
(10.20 +0.07/-0.00)
531.0 +1.8/-0.0
(20.91 +0.07/-0.00)
125.75
(4.951)
40.75
(1.604)
210.75
(8.297)
295.75
(11.644)
380.75
(14.990)
465.75
(18.337)
550.75
(21.683)
591.50
(23.287)
40.25 (1.585)
120.25 (4.734)
200.25 (7.884)
280.25 (11.033)
320.50 (12.618)
22x: Ø3.50
(Ø0.138)
84.5
(3.33)
30.75
(1.211)
4x: 5.00R
(0.197R)
30.25
(1.191)
IMPORTANT
Must use mounting hardware supplied to meet enclosure rating.

Table of Contents

Related product manuals