EasyManua.ls Logo

Allen-Bradley PowerFlex 20-750-ENETR

Allen-Bradley PowerFlex 20-750-ENETR
302 pages
To Next Page IconTo Next Page
To Next Page IconTo Next Page
To Previous Page IconTo Previous Page
To Previous Page IconTo Previous Page
Loading...
Rockwell Automation Publication 750-IN001O-EN-P - October 2014 205
Power Wiring Chapter 4
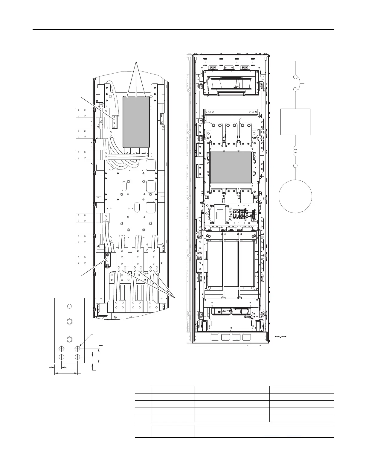
Figure 109 - Option P3 or P5 Disconnect and Option L2 or L4 Output Reactor
ø15 (0.6)
4 Places
44.5
(1.75)
19.1
(0.75)
70.5
(2.80)
21.5
(0.85)
U / T1
V / T2
W / T3
Drive
Motor
P3 or P5
L2 or L4
Output Terminal
Floor Mount Frame 8 Floor Mount Frame 9
No. Name Description Recommended Torque
R/L1, S/L2, T/L3 Three-phase input power connection. Factory Installed
PE Three-phase input ground. 38.0 N•m (336 lb•in)
PE Three-phase motor ground. 38.0 N•m (336 lb•in)
U/T1, V/T2, W/T3 Motor connection. 38.0 N•m (336 lb•in)
R/L1, S/L2, T/L3 Three-phase input power for frame 9 drives lands on the horizontal bus bars behind
the cabinet options rollout assembly. See page 164
and page 165.

Table of Contents

Related product manuals