EasyManua.ls Logo

Allen-Bradley PowerFlex 20-750-ENETR - Page 99

Allen-Bradley PowerFlex 20-750-ENETR
302 pages
To Next Page IconTo Next Page
To Next Page IconTo Next Page
To Previous Page IconTo Previous Page
To Previous Page IconTo Previous Page
Loading...
Rockwell Automation Publication 750-IN001O-EN-P - October 2014 99
Lift and Mount the Drive Chapter 3
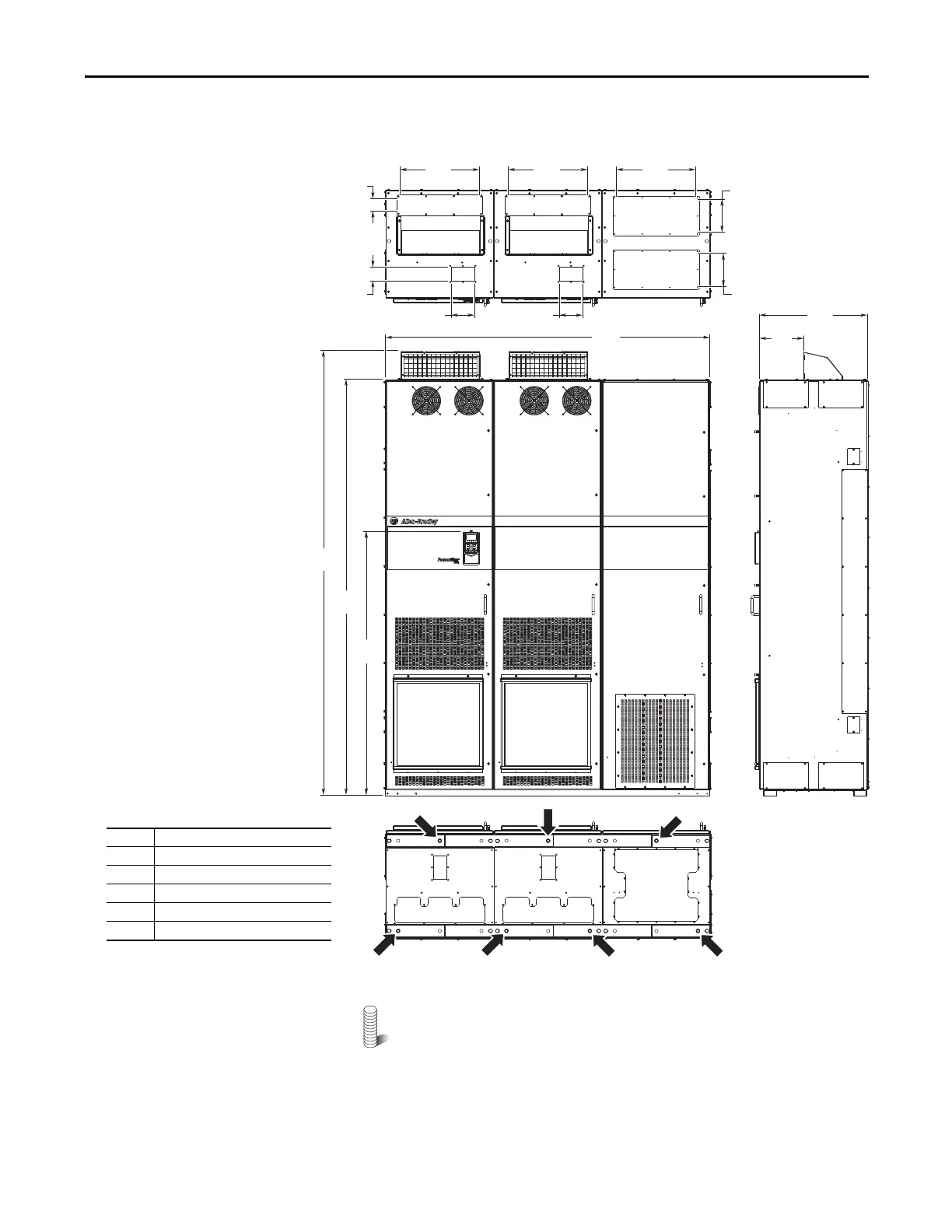
Figure 60 - IP20, NEMA/UL Type 1, MCC Style Cabinet, Floor Mount Frame 9
Enclosure Code B with P14 - 600 mm Deep Drive with Wiring Bay.
M12 (1/2 in.) Property Class 8.8 anchoring hardware recommended to
fasten the drive cabinet through its internal mounting angle to the
foundation. Anchor bolts may be pre-located and embedded in the
foundation prior to instillation.
600
(23.6)
240
(9.4)
1800
(70.9)
2453
(96.6)
2300
(90.6)
440
(17.3)
127
(5.0)
183
(7.2)
183
(7.2)
440
(17.3)
127
(5.0)
76
(3.0)
68
(2.7)
440
(17.3)
1464
(57.6)
No. Description
Power wiring conduit plates.
Control wiring conduit plates.
Optional exhaust hood.
Optional HIM.
Recommended seven-hole anchoring.
BOTTOM
TOP

Table of Contents

Related product manuals