EasyManua.ls Logo

Allied 96G2UHV - Unit Dimensions

Default Icon
58 pages
Print Icon
To Next Page IconTo Next Page
To Next Page IconTo Next Page
To Previous Page IconTo Previous Page
To Previous Page IconTo Previous Page
Loading...
507961-01Page 2 of 58 Issue 2128
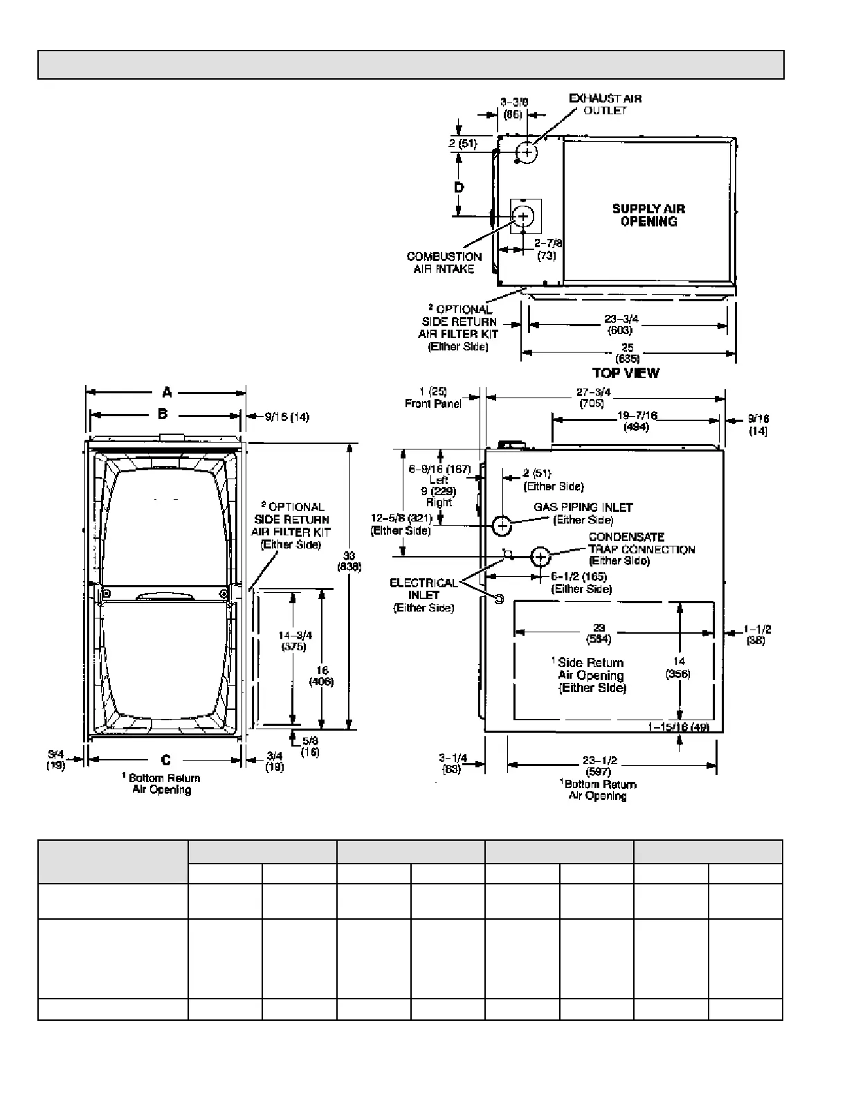
1 NOTE - C*20 and D*20 (5 Ton) size units installed in upow
applications that require air volumes of 1800 cfm (850 L/s) or greater
must have one of the following:
1. Single side return air with transition, to accommodate 20 x 25 x 1
in. (508 x 635 x 25 mm) air lter.
2. Single side return air with optional RAB Return Air Base
3. Bottom return air.
4. Return air from both sides.
5. Bottom and one side return air.
2 Optional External Side Return Air Filter kit is not for use with
optional Return Air Base.
* Consider sizing requirements for optional IAQ equipment before
cutting side return opening.
FRONT VIEW SIDE VIEW
Unit Dimensions
Model
A B C D
in. mm in. mm in. mm in. mm
045-12
070-12
17-1/2 448 16-3/8 416 16 406 7-5/8 194
090-12
090-16
090-20
110-16
110-20
21 533 19-7/8 505 19-1/2 495 9-3/8 238
135-20 24-1/2 622 23-3/8 594 23 584 11-1/8 283

Table of Contents

Related product manuals