EasyManua.ls Logo

Allied A95UH - Page 31

Default Icon
57 pages
Print Icon
To Next Page IconTo Next Page
To Next Page IconTo Next Page
To Previous Page IconTo Previous Page
To Previous Page IconTo Previous Page
Loading...
506724-01 Page 31 of 57Issue 1108
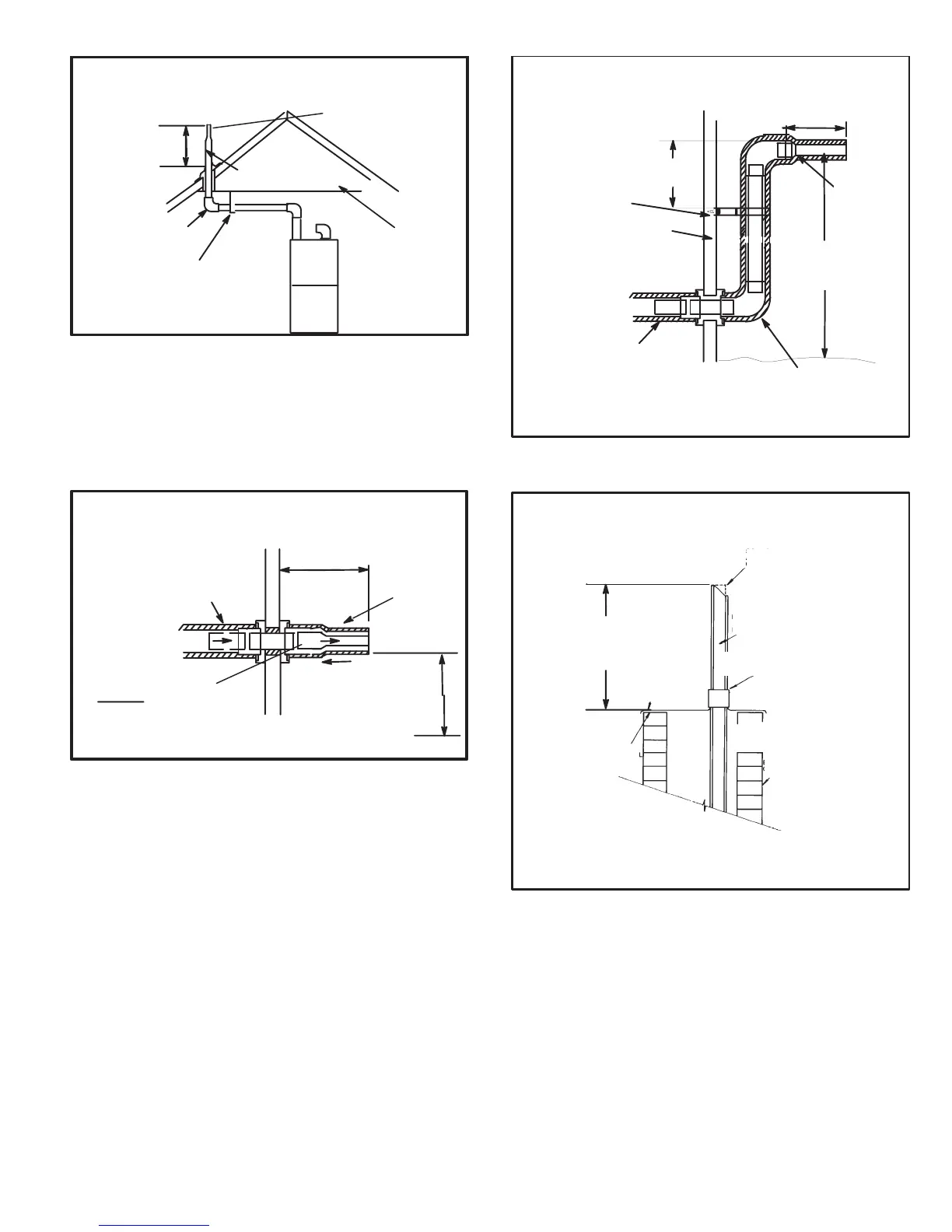
3. If exhaust piping must be run up a sidewall to position
above snow accumulation or other obstructions, piping
must be supported every 24” (610 mm) as shown in
Figure 41. When exhaust piping must be run up an
outside wall, any reduction in exhaust pipe size must be
done after the final elbow.
FIGURE 39
NON−DIRECT VENT ROOF TERMINATION KIT
(15F75 or 44J41)
UNCONDITIONED
ATTIC SPACE
3" (76mm) OR
2" (51mm) PVC
PROVIDE SUPPORT
FOR EXHAUST LINES
12" (305mm)
ABOVE AVE.
SNOW
ACCUMULATION
SIZE TERMINATION
PIPE PER TABLE 6.
1/2" (13mm) FOAM
INSULATION IF REQUIRED
FIGURE 40
1/2" (13mm) ARMAFLEX
INSULATION IN
UNCONDITIONED SPACE (IF REQUIRED)
PVC REDUCER
1/2" (13mm)
ARMAFLEX
INSULATION
NON−DIRECT VENT FIELD SUPPLIED WALL TERMINATION
SIZE TERMINATION
PIPE PER TABLE 6.
FIELD−PROVIDED
REDUCER MAY
BE REQUIRED TO
ADAPT LARGER
VENT PIPE SIZE
TO TERMINATION
12" MIN.
(305mm)
Above Grade or
average snow
accumulation
12" (305mm) MAX. for 2" (51mm)
20" (508mm) MAX. for 3" (76mm)
(IF REQUIRED)
FIGURE 41
12" (305mm)
ABOVE GRADE OR
AVERAGE SNOW
ACCUMULATION
UNCONDITIONED
SPACE
1/2" (13mm) FOAM
INSULATION (IF REQUIRED)
1/2" (13mm) FOAM
INSULATION IN
UNCONDITIONED
SPACE (IF REQUIRED)
*WALL SUPPORT
OUTSIDE WALL
SIZE TER-
MINATION
PIPE PER
TABLE 6.
FIELD−PROVIDED
REDUCER MAY BE
REQUIRED TO
ADAPT LARGER
VENT PIPE SIZE TO
TERMINATION
*Use wall support every 24" (610). Use two supports if extension is
greater than 24" but less than 48".
12" (305mm) MAX. for 2" (51mm)
20" (508mm) MAX. for 3" (76mm)
NON−DIRECT VENT FIELD SUPPLIED WALL
6" (152mm)
Max
TERMINATION EXTENDED
NOTE − Do not discharge exhaust gases directly into any chimney or vent stack. If ver-
tical discharge through an existing unused chimney or stack is required, insert piping
inside chimney until the pipe open end is above top of chimney and terminate as illus-
trated. In any exterior portion of chimney, the exhaust vent must be insulated.
FIGURE 42
STRAIGHT−CUT OR
ANGLE−CUT IN DIRECTION
OF ROOF SLOPE
EXHAUST VENT
1/2" (13mm)
WEATHERPROOF
INSULATION (IF REQUIRED)
SHOULDER OF FITTINGS
PROVIDE SUPPORT
OF PIPE ON TOP PLATE
EXTERIOR
PORTION OF
CHIMNEY
INSULATE
TO FORM
SEAL
SHEET
METAL TOP
PLATE
SIZE TERMINATION
PIPE PER TABLE 6.
NON−DIRECT VENT APPLICATION
USING EXISTING CHIMNEY
Minimum 12" (305MM)
above chimney top
plate or average snow
accumulation

Related product manuals