EasyManua.ls Logo

Alpha C23 - Page 13

Alpha C23
36 pages
Print Icon
To Next Page IconTo Next Page
To Next Page IconTo Next Page
To Previous Page IconTo Previous Page
To Previous Page IconTo Previous Page
Loading...
13
Alpha C23/27 - Installation
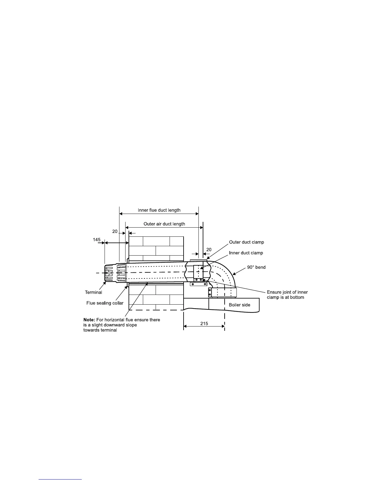
4.7 FIT A FLUE EXTENSION - Figs. 12, 13
Note: 1. The maximum horizontal flue assembly length must not exceed a length of 3 metres.
2. If the flue is more than 1.5 m, the restrictor must be removed from the boiler flue adaptor (see Fig. 13).
1. Withdraw the inner flue duct from the outer air duct supplied with the boiler.
2. Withdraw the inner flue duct from the extension. Secure the two ducts together using the clamp supplied with the
extension, ensure that the ducts are butted together and the clamp is central over the joint.
3. Secure the outer ducts together using the silicone seal (if applicable) and clamp supplied with the extension.
4. With all the ducts assembled together, cut to the following lengths:-
Rear flue Outer air duct length = finished wall thickness + 135 mm.
Inner flue duct length = finished wall thickness + 172 mm.
Side flue Outer air duct length = finished wall thickness + the distance from the inside wall to the side of the boiler + 145 mm.
Inner flue duct length = finished wall thickness + the distance from the inside wall to the side of the boiler + 182 mm.
5. When measuring the outer duct, measure from the end of the tube as shown in Figs. 12 and 13.
6. Cut both the inner and outer ducts to length. Ensure that all cuts are square and burr free.
7. Fit the flue terminal to the outer duct ensuring it is fully located and secure with the two screws provided.
8. Place the inner flue duct back into the outer duct. Use the inner duct supports to centralise the duct in the outer duct.
9. Fit the flue assembly as described in the previous section. Due to the size of the flue clamps the flue must be fitted from
inside the building.
10. It may be necessary to support the flue with suitable brackets (every metre) when flue lengths approaching the maximum
are used.
Fig. 12 - Rear flue

Other manuals for Alpha C23

Related product manuals