EasyManua.ls Logo

Alpine IVA-D300 - System Example

Alpine IVA-D300
82 pages
Print Icon
To Next Page IconTo Next Page
To Next Page IconTo Next Page
To Previous Page IconTo Previous Page
To Previous Page IconTo Previous Page
Loading...
72-EN
DISPLAY OUT
NAVIGATION IN
REMOTE IN/ OUT
PRE IN/OUT
Ai-NET
FRONT
L
R
SUBW.
REAR
POWER SUPPLY
AUX OUT
AUX IN
VIDEO
AUDIO
R
L
RADIO ANTENNA IN
CAMERA IN
AV.SELECTOR
EXT.OUT
4
66
1
2
3
5
6
7
!
#
!
!
"$
%
8
9
NORM
EQ/DIV
&
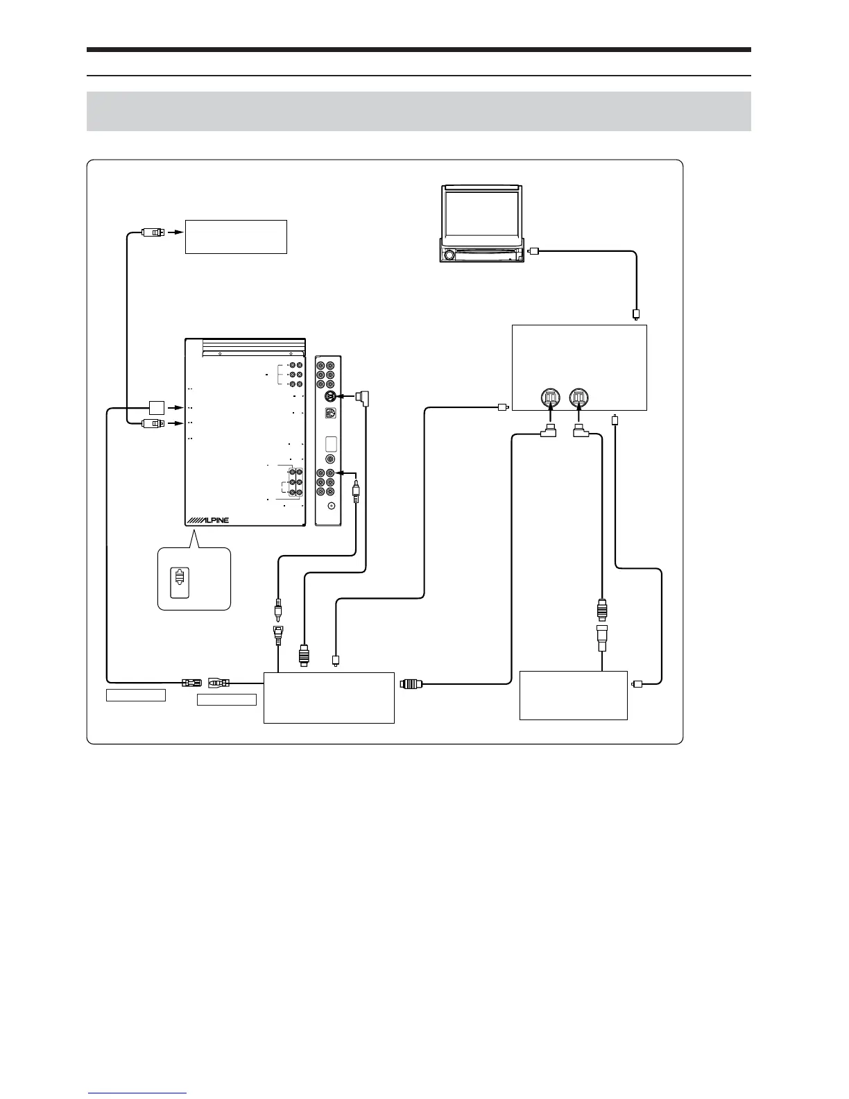
System Example
Connect the Ai-NET compatible audio processor (Fiber digital compatible), Navigation system, DVD
player and changer.
Navigation system
(Sold Separately)
IVA-D300 Monitor
(Yellow)
NVE-N852A/NVE-N871A
*Fiber digital Input terminal
(for head unit)
Audio Processor (Ai-NET)
(Fiber Digital compatible)
(Sold Separately)
DVD Video Player
(DVA-5210 etc.)
(Sold Separately)
(White/Brown)
Fiber optic
cable
Fiber digital
Input terminal
(for Changer)
**
Fiber
optic cable
Ai-NET
cable
Ai-NET cable
Ai-NET
cable
Fiber optic cable
CD Changer (Ai-NET)
(Sold Separately)
**
Only connect fiber digital compatible CD Changer
Fiber digital
Input terminal
(for DVD Player)
When the fiber digital compatible product is connected, it is necessary to set the mode of this unit. Refer to “Setting the Digital Output” (page
30) and set to ON. Then refer to “Optical Digital Input Selection for an External Audio Processor” (page 34) and switch the setting.
* When connecting with PXA-H510 :
- Connect the fiber digital input terminal to the DVD.
- IVA-D300, DVA-5200, DVA-5205 or DVA-5210 cannot be connected simultaneously when fiber digital is in use.
When the NVA-N751AS is connected for the Navigation System, use the RGB conversion cable KWE-503N (Sold separately).
Please observe the following when using Fiber Optic Cable.
Do not coil the Fiber Optic Cable smaller than a 30 mm radius.
Do not place anything on top of the Fiber Optic Cable.
REMOTE IN
(White/Brown)
REMOTE OUT
IVA-D300
Tuner BOX

Table of Contents

Related product manuals