EasyManua.ls Logo

Alto-Shaam 500-3D - Safety Guidelines; Understanding Signal Words

Alto-Shaam 500-3D
33 pages
To Next Page IconTo Next Page
To Next Page IconTo Next Page
To Previous Page IconTo Previous Page
To Previous Page IconTo Previous Page
Loading...
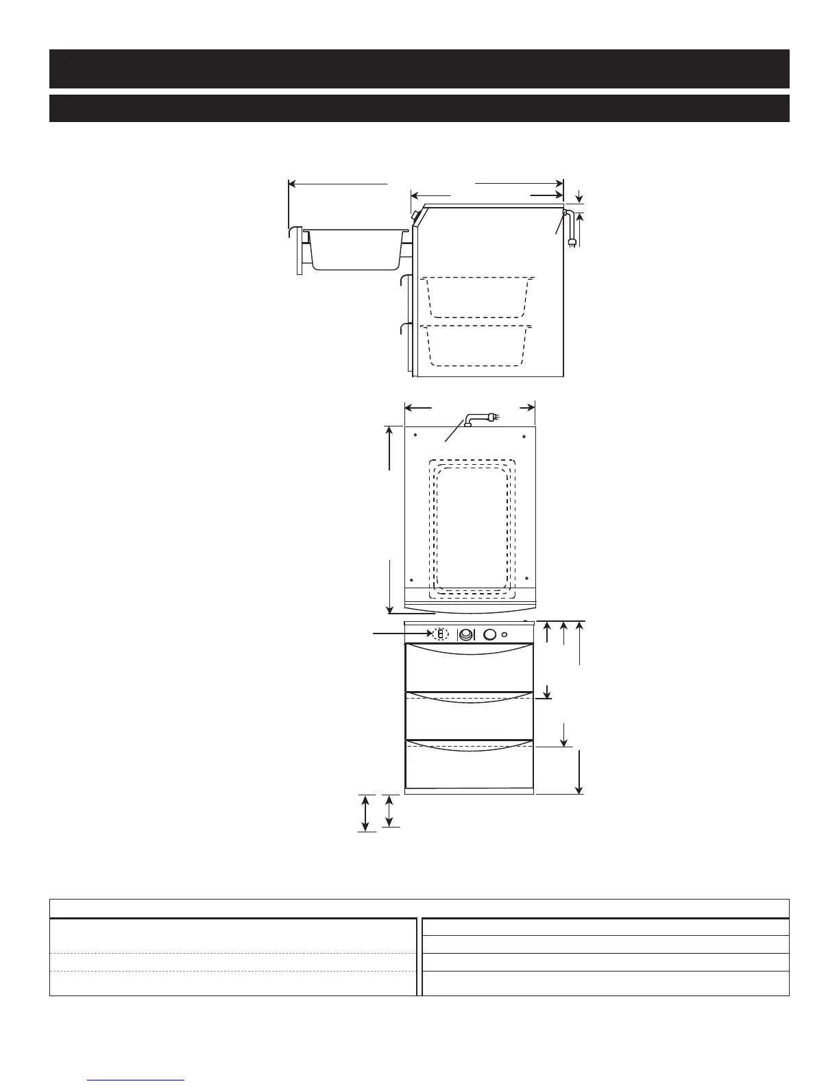
Drawer Warmer Installation/Operation/Service Manual 5.
500-1DN
500-2DN
500-3DN
1-11/16" (42mm)
C
L
16-7/16
"
(418mm)
5
0-7/8" (1291mm)
2
8-1/8" (714mm)
E
LECTRICAL CONNECTION
ELECTRIC CONNECTION
HANDLE
6-3/4" (171mm) FOR
LEG STAND OR 5" (127mm)
CASTER STAND ASSEMBLY
4-7/8" (121mm) FOR 3" (76mm)
CASTER STAND ASSEMBLY
H
I-L
O
Sw
i
t
ch
av
ai
l
ab
l
e o
n
l
y
o
n
5
0
0
-1
D
N
an
d
5
0
0
-2
D
N
.
29-15/16" (761mm)
26-3/16" (663mm)
11-11/16"
(296mm)
18-7/8" (479mm)
O P T I O N S & A C C E S S O R I E S
Built-in Trim Kit
500-1DN 44225
500-2DN 44227
500-3DN 44229
Caster Stand Assembly 55534
Drawer Assembly with vents 55537
Leg Stand Assembly 55535
Perforated pan grid,
12" x 20" (305mm x 508mm) 16642
S I T E I N S T A L L A T I O N
I N S T A L L A T I O N
500-1DN, 500-2DN, 500-3DN

Other manuals for Alto-Shaam 500-3D

Related product manuals