EasyManua.ls Logo

American Control Electronics MGC403 - Page 3

Default Icon
3 pages
Print Icon
To Previous Page IconTo Previous Page
To Previous Page IconTo Previous Page
Loading...
QSG-0135 r 1

            
             

               

               
document.
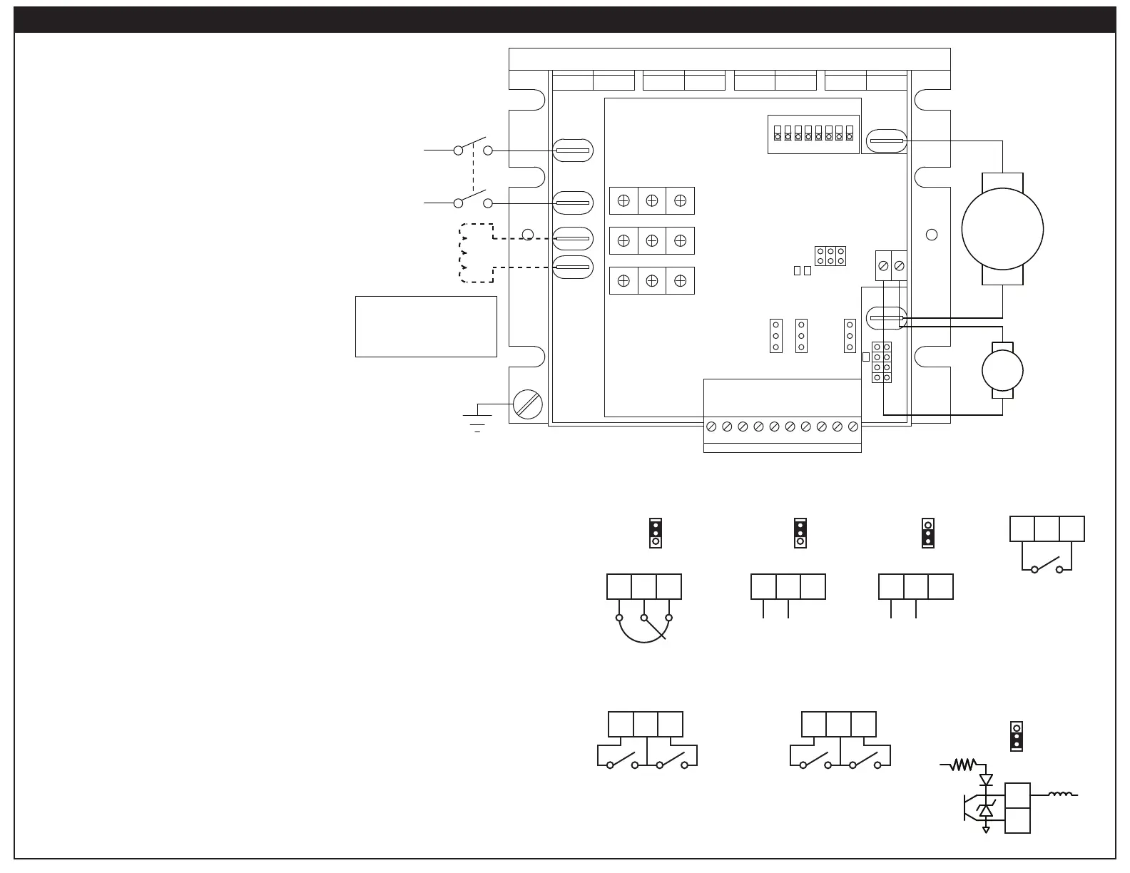
+5V
AUX
COM
5 - 24V
Relay
Coil
OUT IN
AUXILLARY OUTPUT3-WIRE START/STOP*
COM INHEN
CLOSE
TO
RUN
OPEN
TO
STOP
COM INHEN
CLOSE TO RUN
OPEN TO COAST
CLOSE TO RUN
OPEN TO BRAKE
ENABLE / INHIBIT*
*Alternative wiring setups in Operation section
DIRECTION SWITCH
EN COMDIR
Open for Forward
Close for Reverse
4 - 20 mA
SIG1 10VCOM
Common
(-)
Reference
(+)
VDC
mA
SIG1
ANALOG mA
0 - 10 VDC
-10 to 10 VDC
SIG1 10VCOM
Common
(-)
Reference
(+)
VDC
mA
SIG1
ANALOG VDC
10K Ohm
Speed / Torque
Adjust Potentiometer
SIG1 10VCOM
CW
VDC
mA
SIG1
POTENTIOMETER
US
10A
5A
2.5A
1.7A
A2 A1
F- F+
L2L1
COM SIG1 10V SIG2 DIR EN COM INH COM AUX
OUT IN
SIG2SIG1
VDC
mA
T1 T2
A180
A90
TACH
J504
STAT
LIMIT
1 2 3 4 5 6 7 8
ON
IR/TRACCFACC
MOPRVCLFWCL
MAXOFS2OFS1
TACH 0 ± 180 VDC
MOTOR
ARMATURE
0 ± 90 VDC
0 ± 180 VDC
MOTOR FIELD*
100 / 200 VDC
*DO NOT MAKE ANY
CONNECTIONS TO F- OR F+
IF USING A PERMANENT
MAGNET DC MOTOR
EARTH
GROUND
AC LINE INPUT
115 or 230 VAC
POWER
SWITCH




Connect the AC line power leads to terminals L1 and L2, or to a double-throw,

at a minimum of 250 VAC and 200% of motor current.

Connect the DC armature leads to terminals A1 and A2. If the motor does not









Do not make 













Enable
The enable is used to start the drive. It can be set for a normally open or normally

The enable can also be used as a Start switch in a 3-Wire Start/Stop setup.

Inhibit

FACC and RACC trim pots. It can be set for a normally open or normally closed


Connections