EasyManua.ls Logo

Amitek AKD100W - Page 71

Amitek AKD100W
Print Icon
To Next Page IconTo Next Page
To Next Page IconTo Next Page
To Previous Page IconTo Previous Page
To Previous Page IconTo Previous Page
Loading...
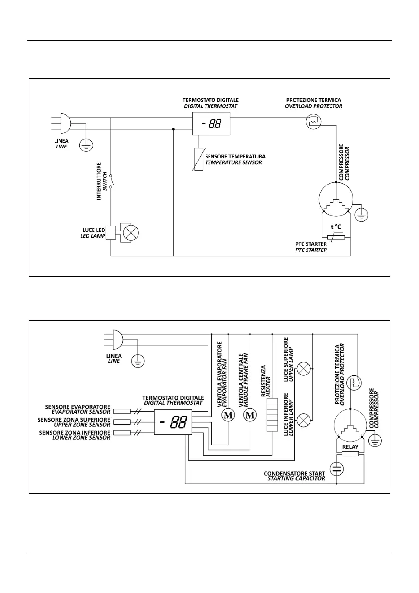
ALLEGATI - ATTACHEMENTS - PIECES JOINTES - ANHÄNGE - 71 -
10. Schemi elettrici - Wiring diagrams - Schémas électriques - Schaltpläne
AKD100W - AKD200W - AKD300W - AKD400W
AKD400WZ

Table of Contents