EasyManua.ls Logo

Anywire B2G78-PN1 - Page 12

Default Icon
58 pages
Print Icon
To Next Page IconTo Next Page
To Next Page IconTo Next Page
To Previous Page IconTo Previous Page
To Previous Page IconTo Previous Page
Loading...
Specifications
2-4
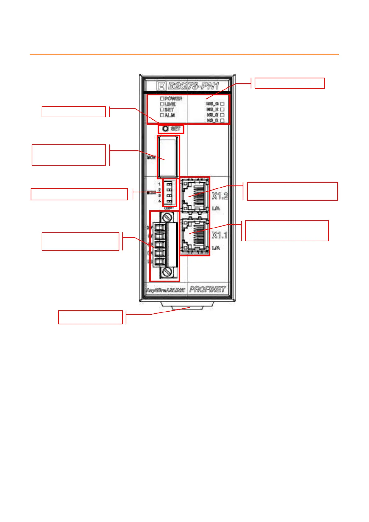
2.4 Name of each part
LED display section
Set switch
Maintenance
connector (Unused)
Number of bits setting switch
AnyWireASLINK
terminal block
PROFINET connector
(OUT)
PROFINET connector
(IN)
DIN hook