EasyManua.ls Logo

Applestone APU06EL - Electrical Schematic

Default Icon
134 pages
Print Icon
To Previous Page IconTo Previous Page
To Previous Page IconTo Previous Page
Loading...
128
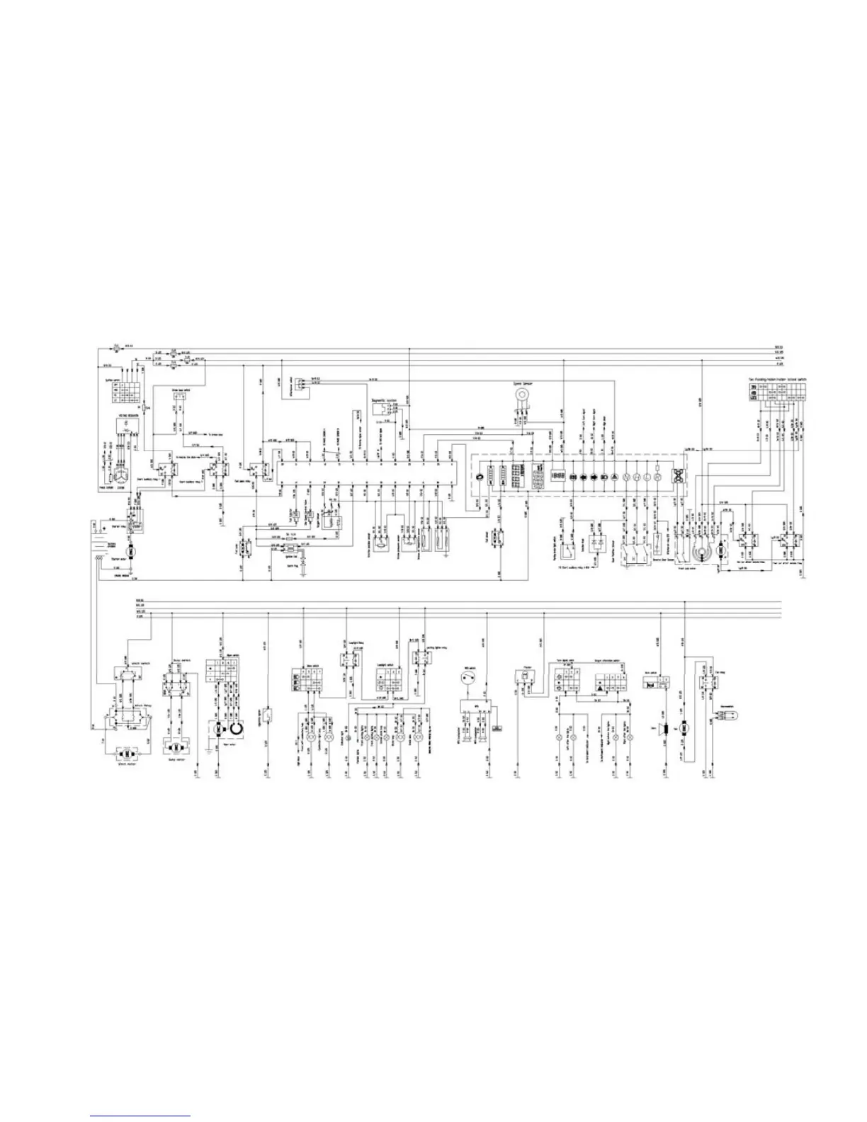
Electrical schematic

Related product manuals