EasyManua.ls Logo

Argo V896-65 - Page 40

Argo V896-65
52 pages
Print Icon
To Next Page IconTo Next Page
To Next Page IconTo Next Page
To Previous Page IconTo Previous Page
To Previous Page IconTo Previous Page
Loading...
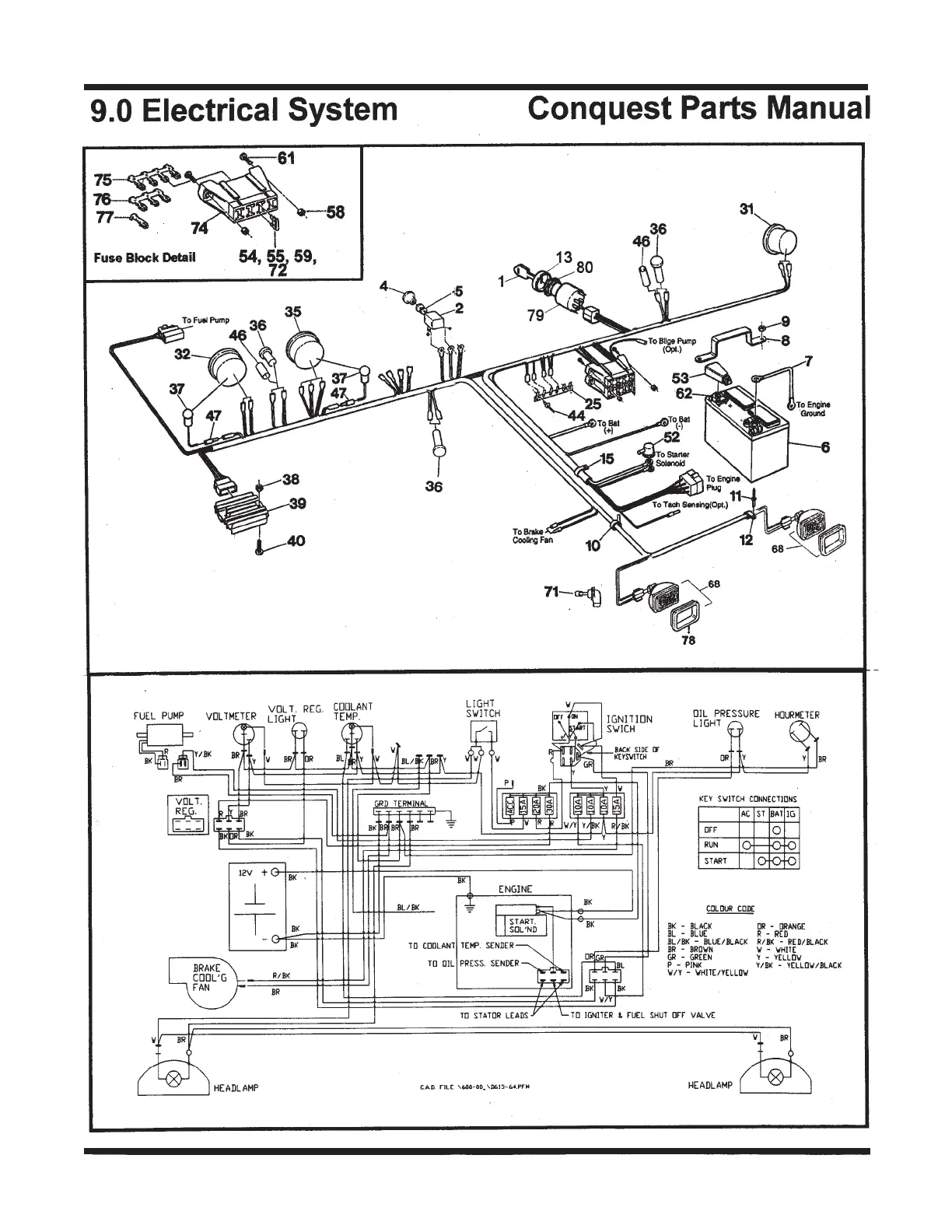
Electrical System Argo Service Manual
Ontario Drive & Gear Limited www.odg.com
PH.(519)- 662-2840 FAX (519)- 662-2421
ES-40
Conquest Model V899-37, V899-38 From CB 17857 02/01

Table of Contents

Related product manuals