EasyManua.ls Logo

Ariston Classico HE STD 125 - Page 22

Ariston Classico HE STD 125
34 pages
Print Icon
To Next Page IconTo Next Page
To Next Page IconTo Next Page
To Previous Page IconTo Previous Page
To Previous Page IconTo Previous Page
Loading...
IVJ
.fts.Et'!
-■
Vj
■J;4.
'
."fA
ss
I
H
ni
S
5
o
ao
3
S
z
5
r
o
^
2
m
q
a
0)
o
£
H.
!S
1
o
^
1
^
3
o
S
o
i i
13
S|
iS
2
g?
m
2
00
^
S
00
o
O
O
11
3
o
§
a
q
■n
P
00
1a
■>1
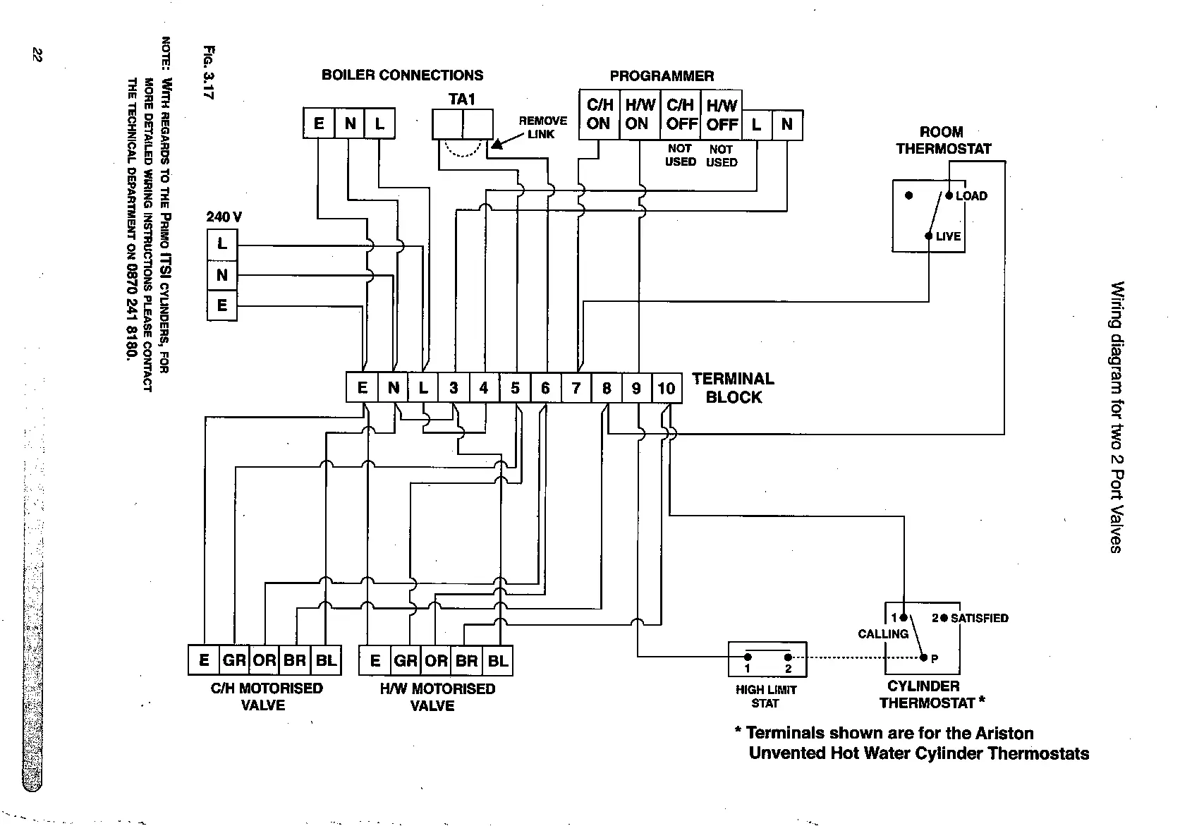
BOILER
CONNECTIONS
TA1
PROGRAMMER
E
N
L
240
V
REMOVE
LINK
C/H
H/W
C/H
H/W
ON
ON
OFF
OFF
N
y\.
NOT NOT
USED
USED
N
ROOM
THERMOSTAT
I
LOAD
LIVE
E
N
L
3
4
5
6
7
8
9
10
TERMINAL
BLOCK
2
•SATISFIED
CALLING
13
(Q
0}
(Q
P
3
o
N>
-P
O
;:5.
(0
E
GR
OR
BR
BL
E
GR
OR
BR
BL
C/H
MOTORISED
VALVE
H/W
MOTORISED
VALVE
HIGH
LIMIT
STAT
CYLINDER
THERMOSTAT*
*
Terminals
shown
are
for
the
Ariston
Unvented
Hot
Water
Cylinder
Thermostats

Other manuals for Ariston Classico HE STD 125

Related product manuals