EasyManua.ls Logo

Ariston Nuos Evo Split 110 - Page 99

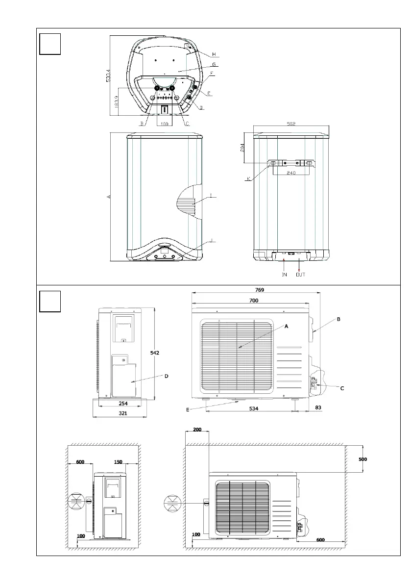
Ariston Nuos Evo Split 110
Print Icon
To Next Page IconTo Next Page
To Next Page IconTo Next Page
To Previous Page IconTo Previous Page
To Previous Page IconTo Previous Page
Loading...
97
1
2

Related product manuals