EasyManua.ls Logo

Arrow PT50 - Page 15

Arrow PT50
32 pages
Print Icon
To Next Page IconTo Next Page
To Next Page IconTo Next Page
To Previous Page IconTo Previous Page
To Previous Page IconTo Previous Page
Loading...
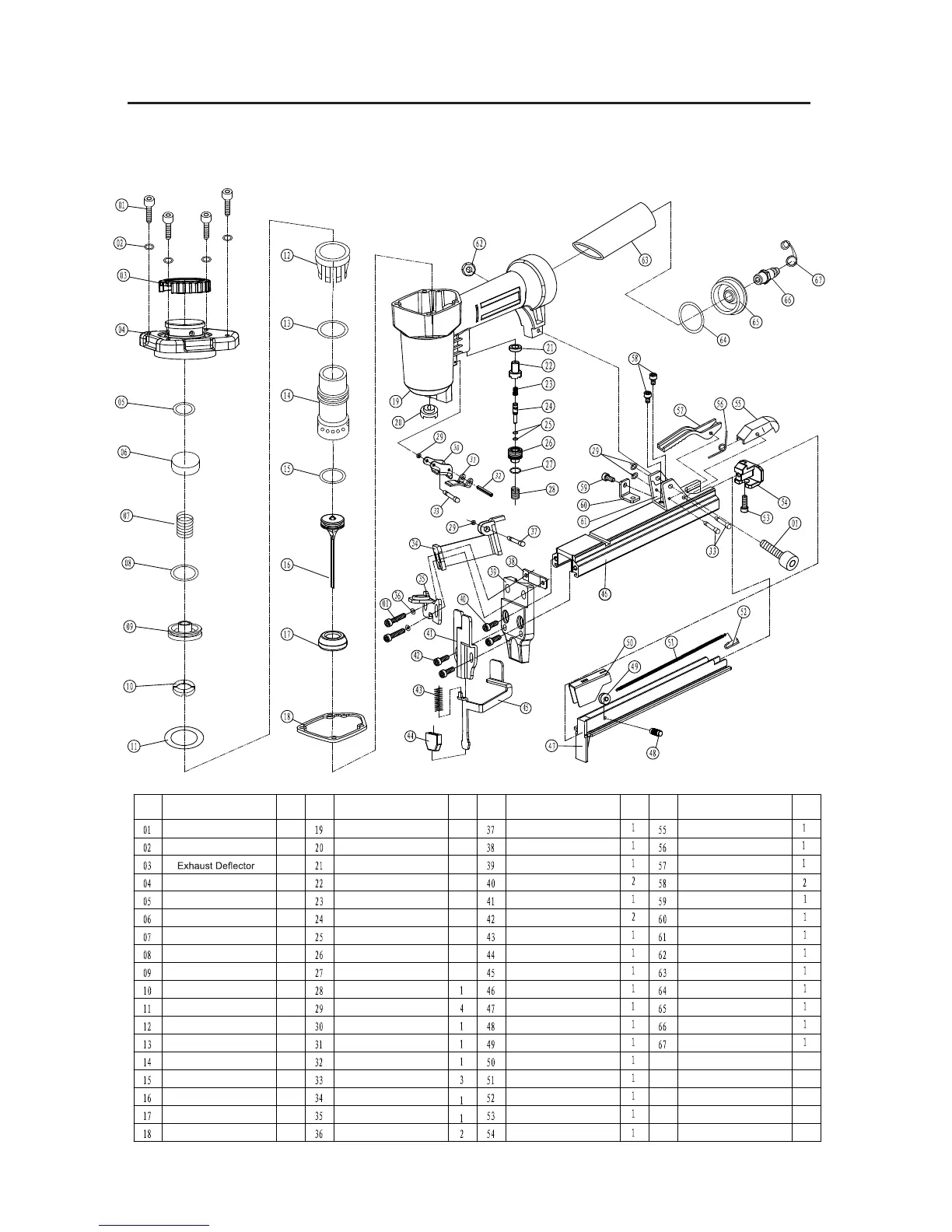
Part Part Part PartDescription Description Description Description
Qty Qty Qty Qty
Hex Bolt
7
Washer 4
1
Cylinder Cover
1
O-Ring
1
Sealing Gasket
1
Compression Spring
1
O-Ring
1
Head Valve
1
Gasket
1
O-Ring
1
Collar
1
O-Ring
1
Cylinder
1O-Ring
1
Piston Assembly
1
Bumper
1
Sealing Gasket
1
Housing
1
Nozzle
1
Gasket
1
Valve Sleeve
1
Trigger Valve Stem Spring
1
Trigger Valve Stem
1
O-Ring 2
Trigger Valve Seat
1
O-Ring
1
Spring
Trigger Pin
Trigger
Upper Magazine
Magazine Bar
Spindle Sleeve
Wheel
Push Rod
Push Rod Spring
Spring Hook
Fixed Piece
Hex Bolt
Torsion Spring
Clip
Magazine Release
Bolt
Hex Bolt
Position Piece
Position Seat
Self Lock Nut
Rubber Grip
O-Ring
End Cap
Air Inlet Plug
Plug Cap
Hook stop lever
Pin
Position Pin
Safety holder(cust)
Spring holder
Spring washer
Pin
Plate
Nose
Hex Bolt
Cover Plate
Hex Bolt
Switch spring
Safety cover
Safety
Schematic & Parts List
T50JC
PT50 Esquemático y listas de piezas

Related product manuals