EasyManua.ls Logo

ASBER ARR-23 - Wiring Diagrams

Default Icon
33 pages
Print Icon
To Next Page IconTo Next Page
To Next Page IconTo Next Page
To Previous Page IconTo Previous Page
To Previous Page IconTo Previous Page
Loading...
REACH-INS SERVICE MANUAL/Rev. JUN. 2015
Page23
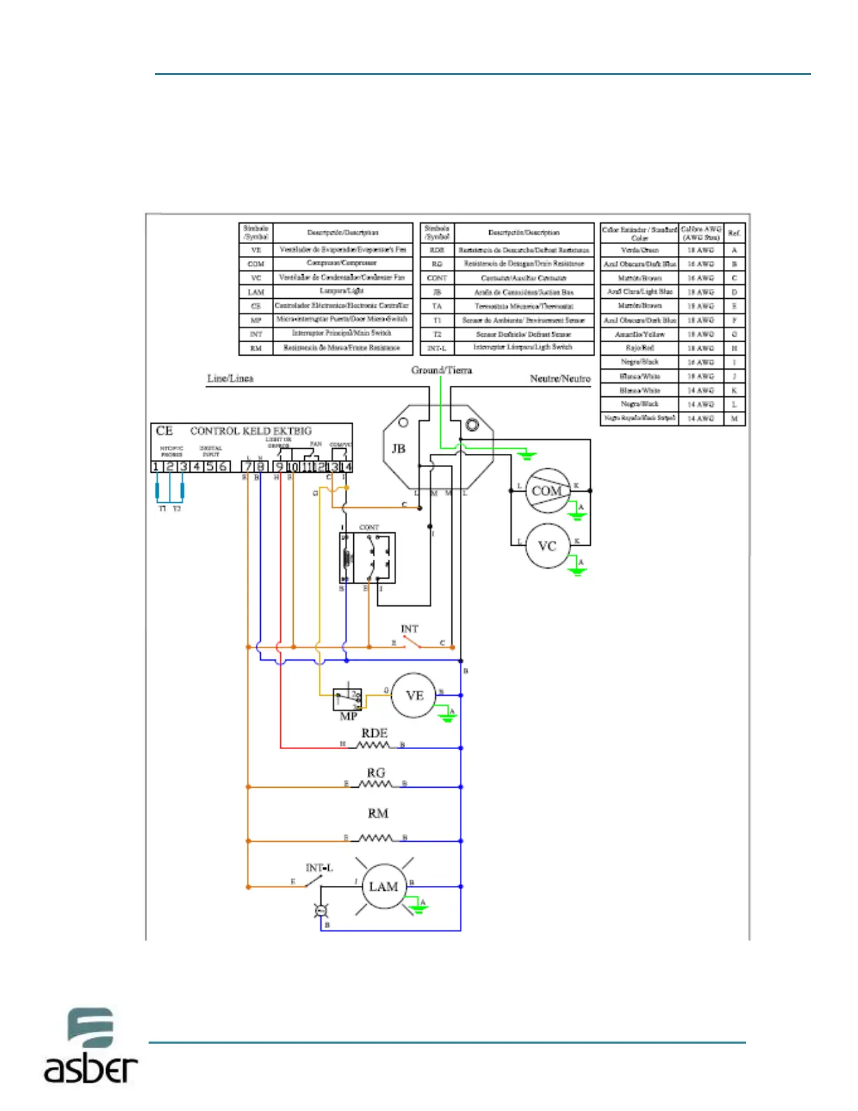
7 WIRING DIAGRAMS
ARF-17

Related product manuals