EasyManua.ls Logo

Asko DSD444B/1 - Installation; Safety Instructions; Setup

Asko DSD444B/1
42 pages
Print Icon
To Next Page IconTo Next Page
To Next Page IconTo Next Page
To Previous Page IconTo Previous Page
To Previous Page IconTo Previous Page
Loading...
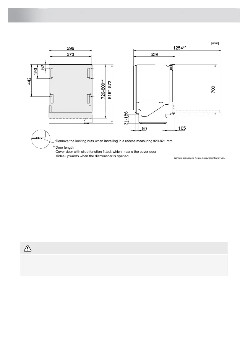
[mm]
Nominal dimensions. Actual measurements may vary.
*Remove the locking nuts when installing in a recess measuring 820-821 mm.
Cover door with slide function fitted, which means the cover door
slides upwards when the dishwasher is opened.
Door length
**
It is important that you read through and follow the instructions and directions below. Conduct
installation and connection in accordance with the separate installation instructions.
Safety instructions
Connections to electricity, water and drainage must be performed by a qualified professional.
Always follow applicable regulations for water, drainage and electricity.
Take care during installation! Wear protective gloves! There must always be two people!
Place a drip tray on the floor beneath the dishwasher to prevent damage from any water leaks.
Before screwing the dishwasher into place, test the dishwasher by running the Rinse & hold
program. Check that the dishwasher fills with water and drains. Check also that none of the
connections leak.
WARNING!
Turn off the water supply when installing the dishwasher!
The plug must be disconnected or power to the socket turned off while the work is carried out!
Setup
The recess and connection dimensions are included in the separate installation instructions.
Check that all dimensions are correct before starting the installation. Note that the height of the
cover door can be adjusted to match other fittings.
Make sure the area on which the dishwasher is to be installed is firm. Adjust the adjustable feet
so that the dishwasher is level. Tighten the lock nuts.
If the dishwasher is built-in the surrounding furnishings must be resistant to any condensation
from the dishwasher.
37
Installation

Related product manuals