EasyManua.ls Logo

Aspes ACHB1301 - Page 53

Aspes ACHB1301
94 pages
Print Icon
To Next Page IconTo Next Page
To Next Page IconTo Next Page
To Previous Page IconTo Previous Page
To Previous Page IconTo Previous Page
Loading...
53
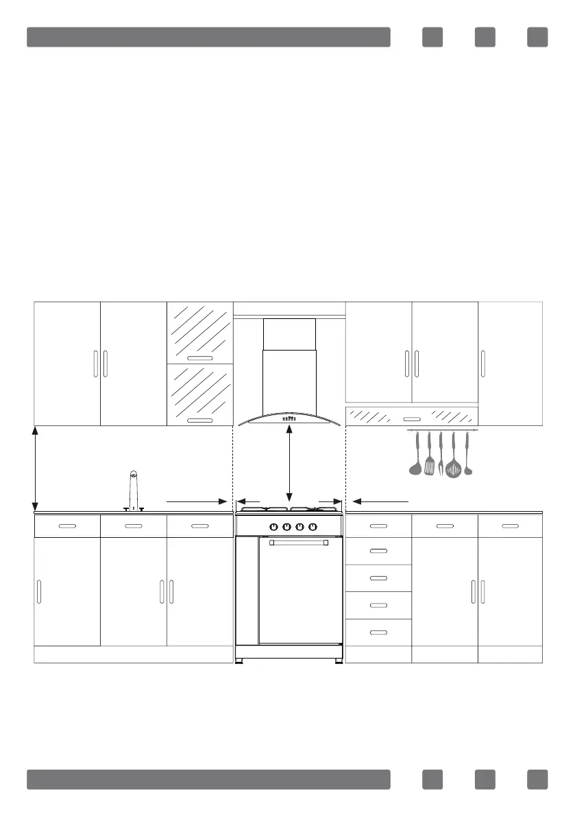
Lugar correcto para la instalación y advertencias impor-
tantes
Es necesario utilizar el aparato dentro de los muebles de la cocina de
manera que haya una distancia de al menos 400 mm entre las supercies
superiores de la placa de cocción y otras supercies y una distancia de
6.5 mm de las supercies laterales.
Si se instalará una campana o extractor encima del aparato, siga las
instrucciones del fabricante para la altura de instalación. (mín. 650 mm)
Es posible colocar el aparato junto a las paredes de la cocina, los
muebles de la cocina o detrás o a un lado de los aparatos de cualquier
tamaño. Los muebles de cocina que se encuentren cerca del aparato
deben ser del mismo tamaño o más pequeños que el aparato.
ADVERTENCIA: Todos los tipos de muebles de cocina
próximos al aparato deben ser resistentes al calor. (No
menos que 100°C)
6,5 mm min.
6,5 mm min.
650 mm min.
400 mm min.