EasyManua.ls Logo

ATI Technologies GasSens - Page 11

ATI Technologies GasSens
49 pages
Print Icon
To Next Page IconTo Next Page
To Next Page IconTo Next Page
To Previous Page IconTo Previous Page
To Previous Page IconTo Previous Page
Loading...
GasSens Gas Detection System Section 1 - Overview
O & M Manual
A14-RK, 8/06 1 - 10
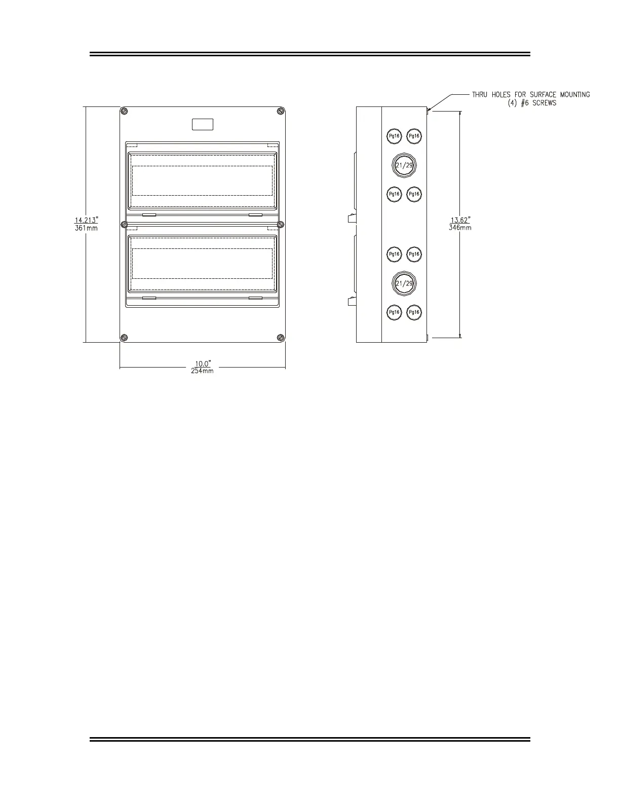
Figure 1-4: Six Module System Enclosure Dimensions (80-0008R)