EasyManua.ls Logo

Atlantic Ingenio VM 050 D400-3-E - Page 3

Atlantic Ingenio VM 050 D400-3-E
69 pages
Print Icon
To Next Page IconTo Next Page
To Next Page IconTo Next Page
To Previous Page IconTo Previous Page
To Previous Page IconTo Previous Page
Loading...
3
EN
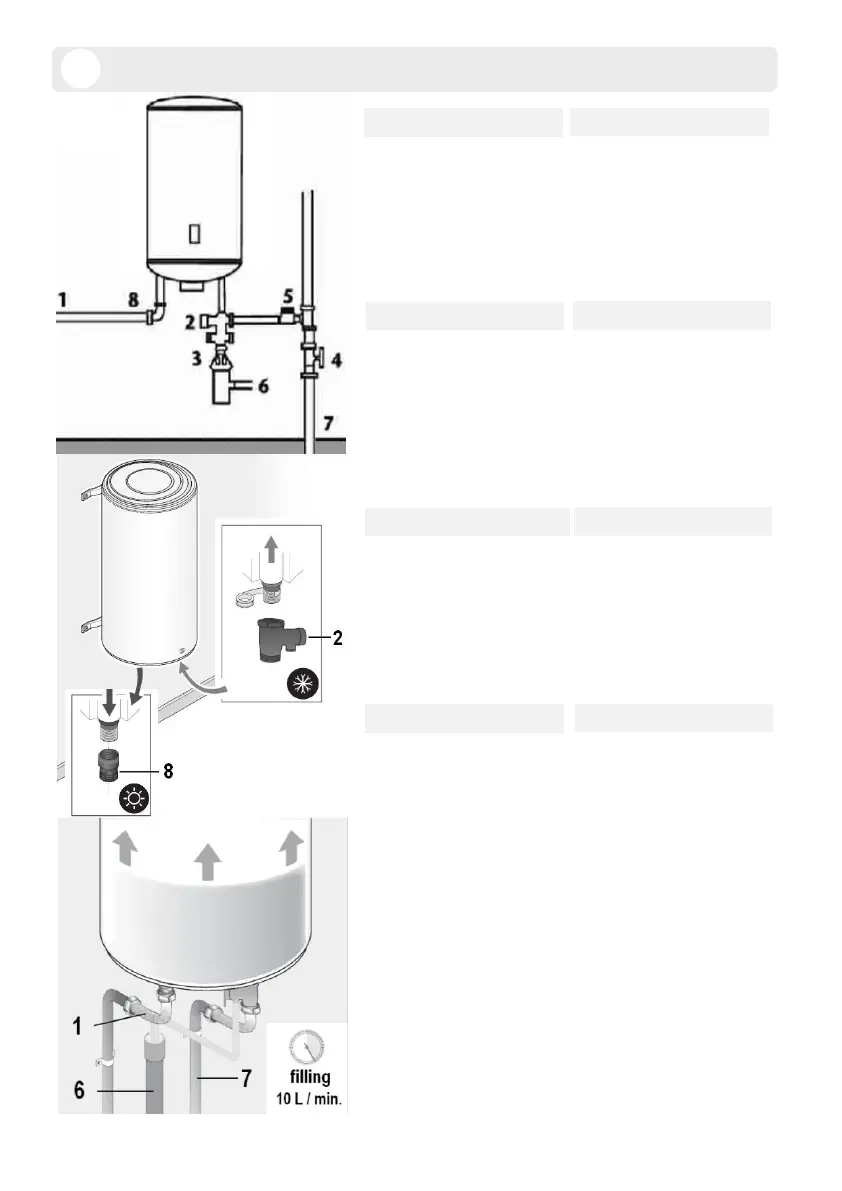
1. Hot water tube
2. Safety relief valve
3. Funnel
4. Pressure reducer recommended if
pressure > 0,5 MPa (5 bar)
5. Stop valve
6. Drain to sewage
7. Cold water pipe
8. Dielectric union
FR
1. Sortie eau chaude
2. Groupe de sécurité
3. Entonnoir-Siphon
4. Réducteur pour pression supérieure
à 0,5 MPa (5 bar)
5. Robinet d’arrêt
6. Vidange
7. Conduite eau froide
8. Raccord diélectrique
ES
1. Salida de agua caliente
2. Grupo de seguridad
3. Embudo-sifón
4. Regulador para presión superior a
0,5 MPa (5 bar)
5. Válvula de cierre
6. Vaciado
7. Conducto de agua fría
8. Conexión dieléctrica
PL
1. Wyjście ciepłej wody
2. Zespół zabezpieczeń
3. Syfon z lejkiem
4. Reduktor ciśnienia dla wartości
powyżej 0,5 MPa (5 bar)
5. Zawór odcinający
6. Spust
7. Przewód doprowadzania zimnej
wody
8. Złącze dielektryczne
2
IT
1. Uscita acqua calda
2. Gruppo di sicurezza
3. Sifone a imbuto
4. Riduttore per pressione superiore a
0,5 MPa (5 bar)
5. Rubinetto di arresto
6. Scarico
7. Condotto acqua fredda
8. Raccordo dielettrico
PT
1. Saída de água quente
2. Grupo de segurança
3. Funil-sifão
4. Redutor para pressão superior
a 0,5 MPa (5 bar)
5. Válvula de segurança
6. Drenagem
7. Conduta de água fria
8. União roscada isolante
RU
1. Выход горячей воды
2. Система безопасности
3. Воронка-сифон
4. Редуктор давления для давления
выше 0,5 МПа (5 бар)
5. Запорный кран
6. Сбросный клапан
7. Трубопровод с холодной водой
8. Диэлектрическая вставка
UA
1. Вихід гарячої води
2. Система безпеки
3. Сифон-лійка
4. Редуктор тиску для тиску, який
вище на 0,5 MПa (5 бар)
5. Запірний кран
6. Зливний клапан
7. Трубопровід із холодною водою
8. Діелектрична вставка
*

Related product manuals