EasyManua.ls Logo

Atlas Copco LE110

Atlas Copco LE110
48 pages
To Next Page IconTo Next Page
To Next Page IconTo Next Page
To Previous Page IconTo Previous Page
To Previous Page IconTo Previous Page
Loading...
2920 1257 04
26
Instruction book
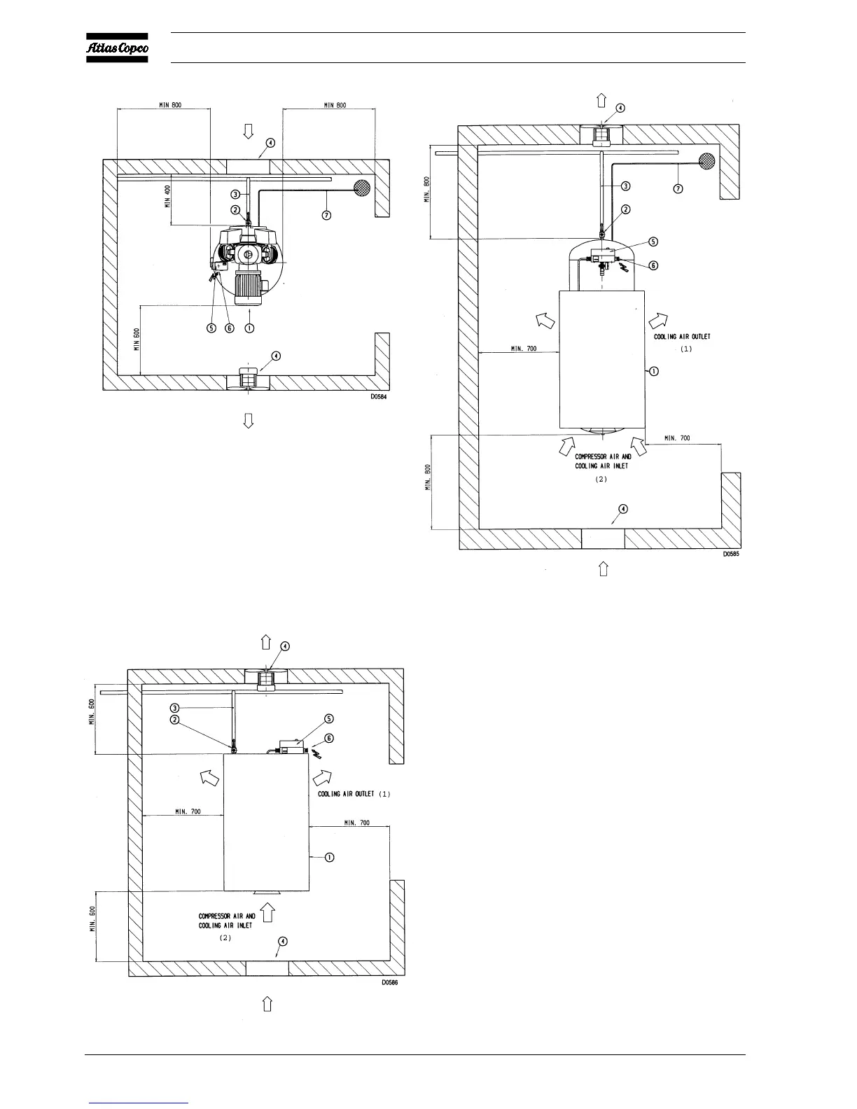
Fig. 2.18 Installation proposal for Complete Unit (vertical
250 l receiver)
Fig. 2.19 Installation proposal for Complete Unit with
optional silencing hood
Fig. 2.20 Installation proposal for Pack compressors Figs. 2.16 up to 2.20 Installation proposals

Table of Contents

Related product manuals