EasyManua.ls Logo

Atlas Copco LF 5

Atlas Copco LF 5
75 pages
To Next Page IconTo Next Page
To Next Page IconTo Next Page
To Previous Page IconTo Previous Page
To Previous Page IconTo Previous Page
Loading...
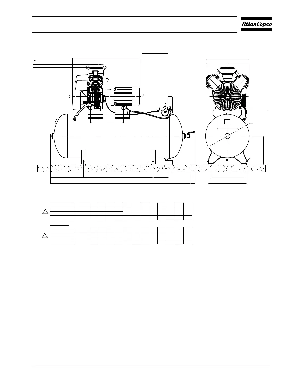
2920 7090 00 29
Instruction book
LE/LT/LF 7-10
D
M 40
C
E
960
10
62
F max.
H
J
G
K
296
B
A
290
Ø L
211
61
FOR DISMANTLING AIR FILTER
COMPRESSOR
COOLING
AIR INLET
COOLING
AIR OUTLET
MOTOR
COOLING
AIR INLET
COMPRESSED
AIR OUTLET
G 1/2"
COMPRESSOR
AIR INLET
COMPRESSOR
AIR INLET
MANUAL DRAIN
OUTLET G 1/4"
SLOT HOLE
15x25 (4x)
TYPE
LE/LT/LF 7
LE /LT/LF 10
NET MASS A B C
411,5
452,5
D
859,5
931,5
E
418
F
1852
G
310
H
336
J
382
K
575
L
450
M
1162
08
189
201
592 296
606 310
452,5 931,5
455 1926 395 476 530 754 600 1341
224
236
606 310
WITH 250L RECEIVER
TYPE
LE/LT/LF 7
LE /LT/LF 10
NET MASS A B C D E F G H J K L M
08
WITH 475L RECEIVER
411,5 859,5
592 296
LE 10 (60Hz) 201
600
300 453 929
LE 10 (60Hz)
236
600 300 453 929
418 1852 310 336 382 575 450 1200
455 1926 395 476 530 754 600 1379
9820 2239 25/08
81737D
LF 7 up to LF 10, Tank-mounted horizontal receiver 250/475l

Related product manuals