EasyManua.ls Logo

Atmos A25 - Connection of Boilers P14 Compact, P21 Compact, P25 Compact with Electronic Regulation ACD01 and a Buffer (Accumulation) Tank

Atmos A25
96 pages
Print Icon
To Next Page IconTo Next Page
To Next Page IconTo Next Page
To Previous Page IconTo Previous Page
To Previous Page IconTo Previous Page
Loading...
Operation and maintenance manual - EN
EN
www.atmos.cz
EN-17
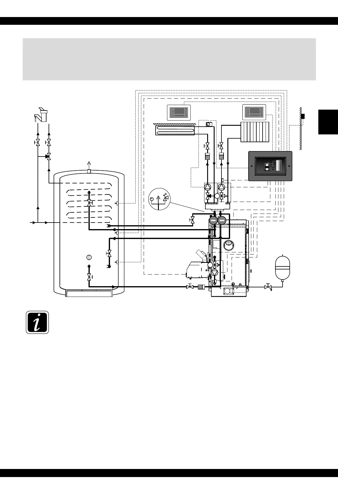
10. Connection of boilers P14 Compact, P21 Compact,
P25 Compact with electronic regulation ACD01 and a
buffer (accumulation) tank
INFO - If using electronic regulation ACD 04 (ACD 03), we do not connect any set or other
sensors in the boiler.
The operation of the burner is controlled directly from the ACD 04 (ACD 03) controller.
System configuration of parameters: S6 = 1, S14 = 0, S15 = 1
MAX
60°C
ARU30/10/5
22,5 °c
M
M
obytné místnosti
-
haritable rooms
AF
PF
FPF
MK1
VF1
MKP1
MK3
VF3
MKP3
vyrovnávací
(akumulační)
nádrž
-
buffer
(accumulation)
tank
TUV - DHW
tlaková
expanzní
nádoba
-
pressure
expansion
vessel
tlakoměr,
pojistný ventil,
odvzdušnovač
-
pressure
gauge, safety
valve, deaerator
čerpadlová skupina
-
pump group
L2-OUT
ATMOS ACD 04
čerpadlová skupina
-
pump group
20 - 55 °C
obytné místnosti
-
haritable rooms
Max. 50 °C
WF
MKP2
ARU30/10/5
22,5 °c
SF
(SFINT)
čerpadlová skupina pro kotlový okruh
-
pump group for boiler circuit