EasyManua.ls Logo

Atmos A25 - Connection of Boilers D14 P, P14, D15 P, P15, D21 P, P21, D25 P or P25 with an Accumulation Tank for Burner Control on the Basis of TS and TV Sensors and Control of the Boiler Pump on the Basis of the TK Sensor

Atmos A25
96 pages
Print Icon
To Next Page IconTo Next Page
To Next Page IconTo Next Page
To Previous Page IconTo Previous Page
To Previous Page IconTo Previous Page
Loading...
Operation and maintenance manual - EN
EN
www.atmos.cz
EN-19
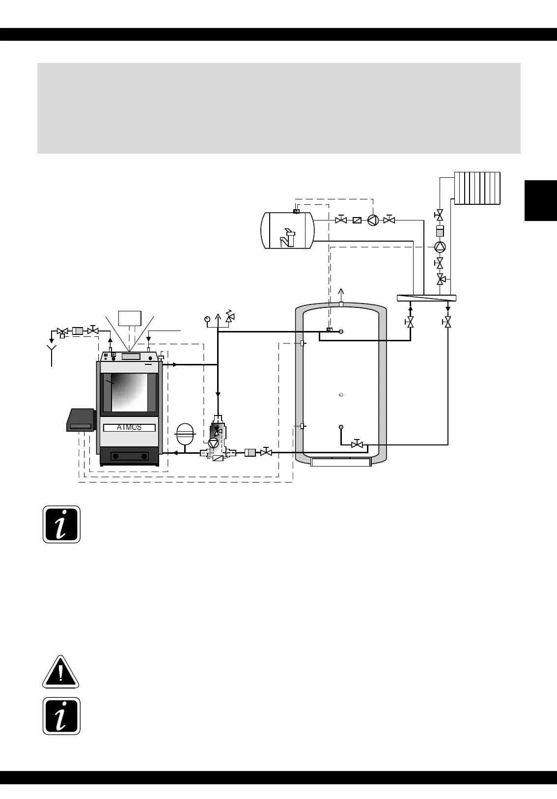
12. Connection of boilers D14P, P14, D15P, P15, D21P, P21,
D25P or P25 with a accumulation tank for burner control
on the basis of TS and TV sensors and control of the boiler
pump on the basis of the TK sensor
INFO – The TV and TS sensors (boiler accessory) on the buffer (accumulation) tank and the
TK sensor on the boiler are connected directly to the burner. The AD02 module is inserted
under the instrument hood of the boiler and is connected to the terminal board of the boiler
(AD02 module - LA clamp), where it controls the extraction fan of the boiler,
Required accessories (not part of the burner): AD02 module and one KTF 20 sensors
System configuration of parameters: S6 = 1, S14 = 13, S15 = 2
For boilers D14P, P14, D21P, P21, D25P and P25 we recommend to set pumps in the boiler circuit to
S40 = 1 for improved operation.
(Reserve R2 – parameter S14 controls the boiler pump)
WA R N I NG – the AD02 module may be replaced by an AD03 module, whereas only the
required output is used (module AD03 – LC clamp)
If necessary, the pump in the boiler circuit may be controlled directly from the boiler without
any module for boilers which cannot be stoked with wood - D14P, P14, D21P, P21, D25P,
P25.
System configuration of parameters without AD02 module is: S14 = 12.
odpad
outlet
Ts
Tv
Modul
AD02
termostat
thermostat
40°C - 60°C
MAX. 60°C
přívod
supply
2-6 bar
10-15°C
ventil / valve
TS131 3/4ZA
(WATTS STS20)
filtr
filter
obytné místnosti
haritable rooms
tlakoměr, přetlakový ventil,
odvzdušňovací ventil
pressure gauge, safety
valve, deaerator
tlaková
expansní
nádoba
pressure
expansion
vessel
ventil
valve
ventil
valve
bojler TUV
DHW boiler
ventil
valve
ventil
valve
ventil
valve
ventil
valve
A25
vyrovnávací nádrž
buffer tank
500 - 1000 l
odvzdušňovací ventil
deaerator
Tk
Laddomat 22
mísící ventil
mixing valve
čerpadlo
pump
ventil
valve
ventil
valve
filtr
filter