EasyManua.ls Logo

Avdel 0727 - Page 46

Avdel 0727
Print Icon
To Next Page IconTo Next Page
To Next Page IconTo Next Page
To Previous Page IconTo Previous Page
To Previous Page IconTo Previous Page
Loading...
'D'
'E'
'B'
28.6
1.125
33.5
1.32
STANDARD
UNIVERSALFLAT
RECESSED TAPERED
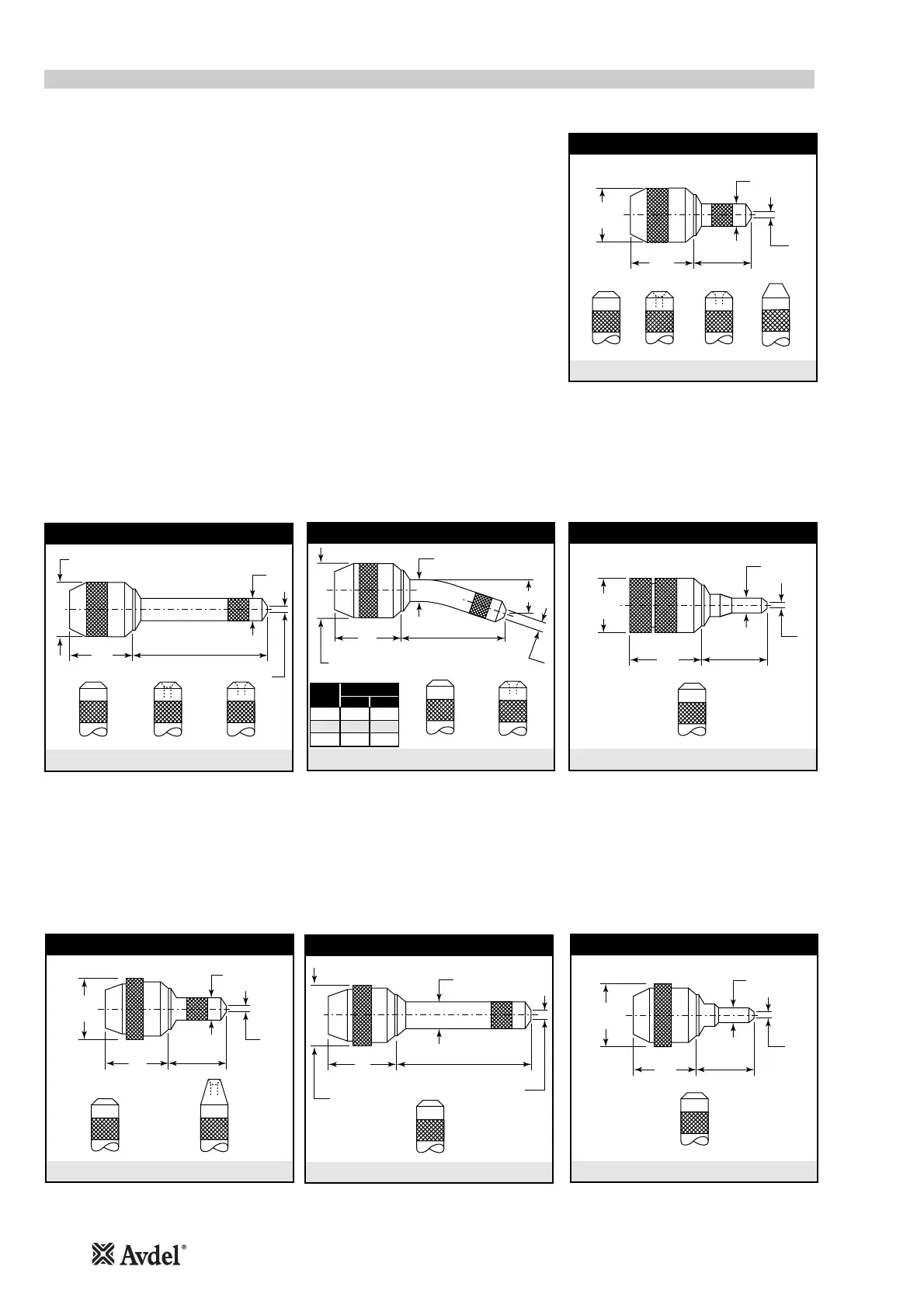
Available in four different end forms to
place all fasteners (except Rivscrew).
Suitable on applications with no or little
access restriction.
SELECTING A NOSE JAW
List the name, size and material of the fastener to be placed.
Look for this fastener in the first column of the nose jaw selection tables on page 13
if using imperial measurements and on page 14 if using metric units.
Looking right across the table, take note of which nose jaws are available. ONLY those
shown are available.
Select which is most suitable for your application by referring to the respective nose
jaw drawing. If your application has no access restriction, you should select the
standard shape with a flat end form with or without a cam.
'D'
'E'
'B'
28.6
1.25
34
1.34
STANDARD CAM OPERATED
FLAT
HEAD FORMING (HF)
FLAT
'D'
'E'
'B'
28.6
1.25
LIMITED ACCESS CAM OPERATED
37.1
1.46
'D'
'E'
'B'
28.6
1.125
33.5
1.32
LONG
UNIVERSALFLAT
RECESSED
1
/
8
.620 15.7
5
/
32
.690 17.5
3
/
16
.720 18.3
'F'
mm in.
RIVET
Ø
'D'
'E'
'B'
28.6
1.125
'F'
LONG CURVED
FLAT RECESSED
33.5
1.32
FLAT
'D'
'E'
'B'
20.5
0.81
LIMITED ACCESS
41.4
1.63
Available to place most of the fasteners.
Allows more penetration into applications
with no other access restriction.
Available as shown in NOSE JAW
SELECTION TABLE.
Allows more penetration into applications
with restricted access.
Mandrels must be curved by hand to follow
the shape of the jaw.
Available as shown in NOSE JAW
SELECTION TABLE.
Allows access into very restrictive
applications.
'D'
'E'
'B'
28.6
1.25
LONG CAM OPERATED
FLAT
34
1.34
Available as shown in NOSE JAW SELECTION TABLE overleaf. Equivalent functions to the Standard, Long and Limited Access above
with the addition of a cam to ease and speed up the nose jaw opening thus the pod reloading procedure.
12

Related product manuals