EasyManua.ls Logo

AVS Electronics BF100 A - CONTROL UNIT CONNECTIONS; Direct Connection (OUT +F); Alarm Relay Output Configuration

AVS Electronics BF100 A
16 pages
Print Icon
To Next Page IconTo Next Page
To Next Page IconTo Next Page
To Previous Page IconTo Previous Page
To Previous Page IconTo Previous Page
Loading...
- 12 -
IST0649V1/0
ALLARME
NO
NC
+FGUASTO
C
NO
NC
C
OUT
+
- BA
R1
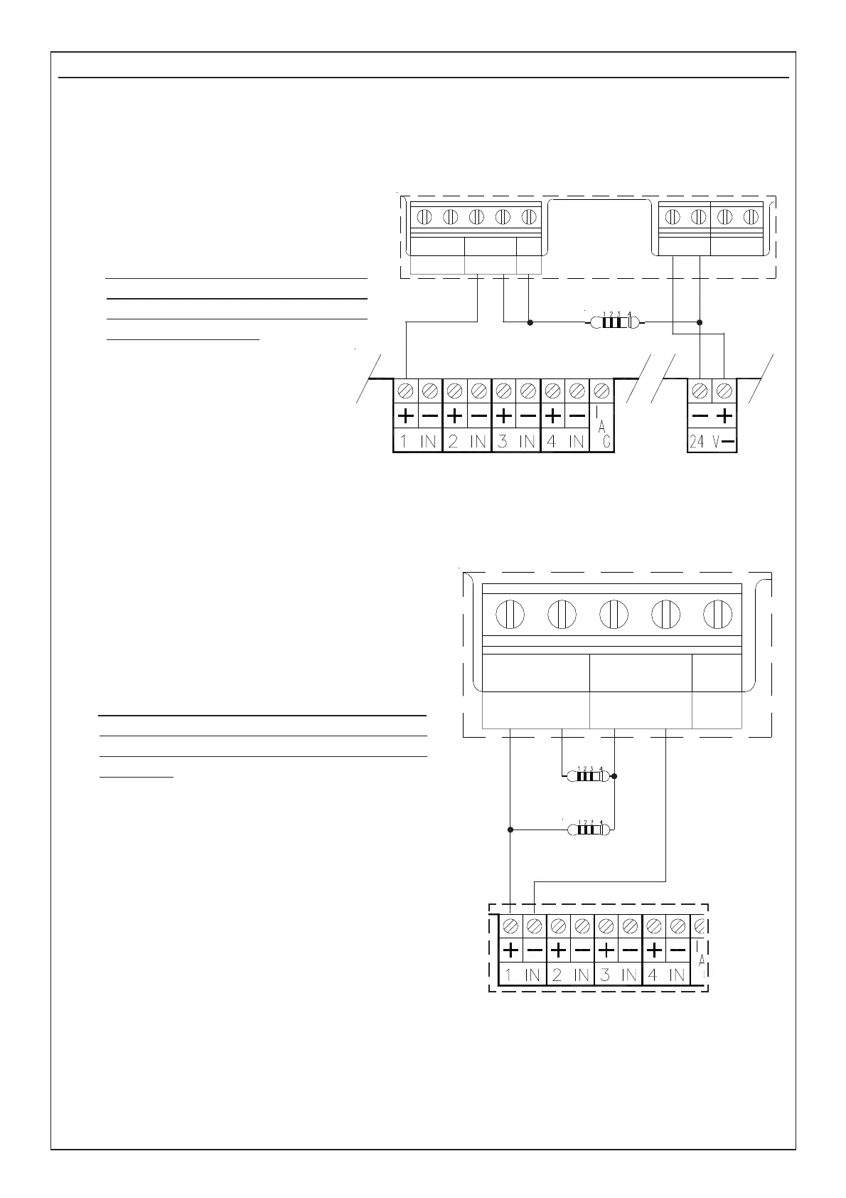
CONNECTIONS TO CONTROL UNITS
BF100R beam is equipped with:
ALLARME
NO
NC
+F
GUASTO
C
NO
NC
C
OUT
R1
R2
In both cases, if module BR100 is used, reset can be done through mechanical key on board.
- Relay ALARM output.
Contacts of this output can be C/NC or C/
NO according to setting of jumper S7 (see
chapter JUMPER).
In order to reset the beam from alarm
condition, it is necessary to take off supplying
from the beam for a few seconds (Jumper
S9 open).
An example of connection using these contacts is
shown on side-drawing where ALARM contact is
set on C/NO and FAULT relay is set on C/NC.
R1 is the end-line resistence which is usually given
within control unit.
R2 is the alarm resistence (for AVS control units
the value of this resistence is 680/1000 ohm –
3W) (not included).
- OUT + F for direct connection to
AVS conventional fire control units
(charge of 680 ohm during alarm).
In order to reset the beam from
alarm condition, simply make a
reset operation on control unit
(Jumper S9 closed).
Side-drawing shows an example
of connection using these
contacts: R1 is the end-line
resistance usually given with
control unit. FAULT contact is set
on C/NC.