EasyManua.ls Logo

AVS Electronics BF100 A - Page 6

AVS Electronics BF100 A
16 pages
Print Icon
To Next Page IconTo Next Page
To Next Page IconTo Next Page
To Previous Page IconTo Previous Page
To Previous Page IconTo Previous Page
Loading...
- 6 -
IST0649V1/0
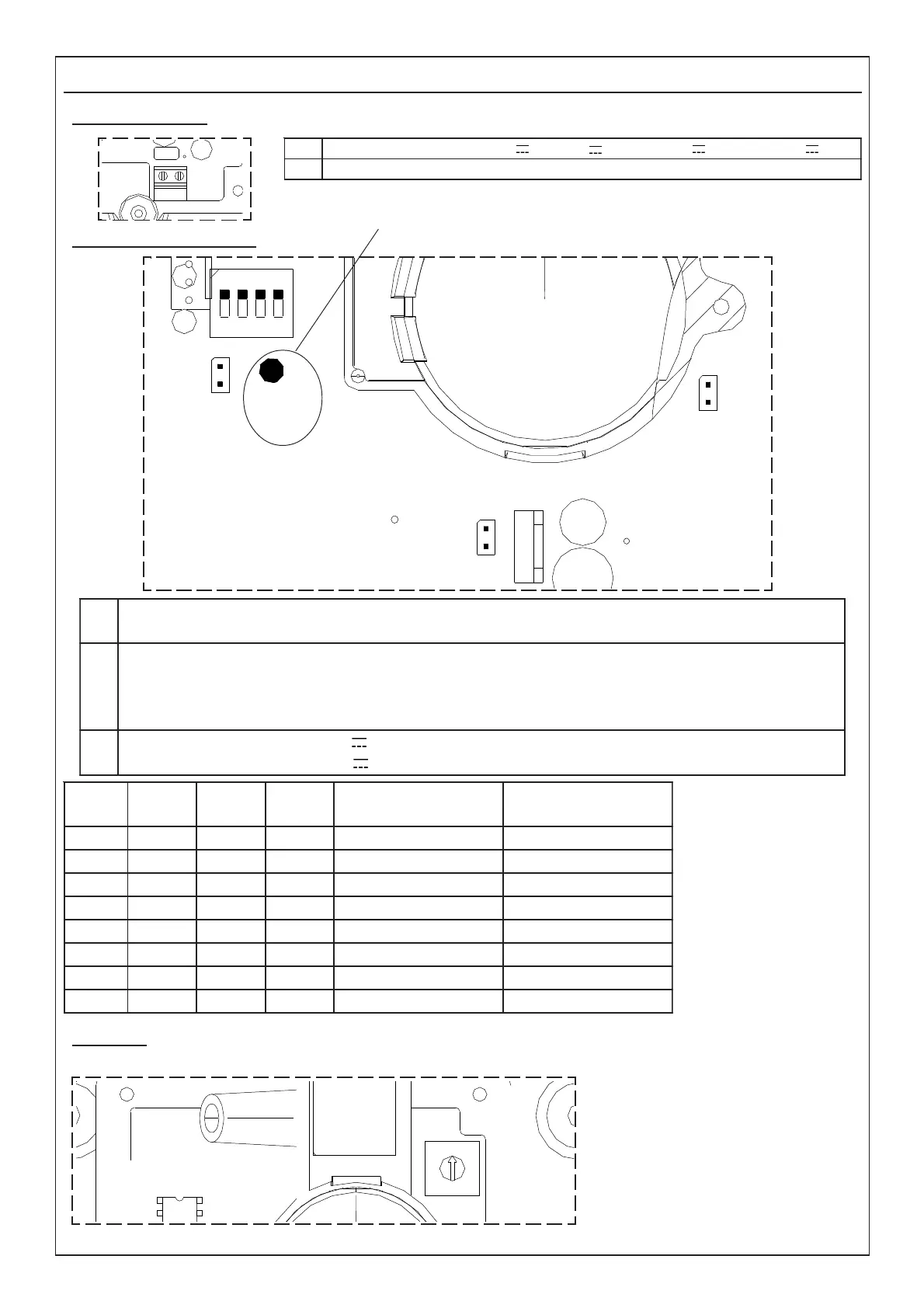
Terminal board
TRANSMITTER
Jumper e Dip Switch
2S
desolC
nepO
)ffodeLdeR(noitarbilaC
)nodeLdeR(gnikrowlamroN
5S
ecnatsiD
noitceleS
)repmuJ(
desolC
nepO
53neewtebdedulcnireviecerdnarettimsnartneewtebecnatsidroF
.sretem001dna
5neewtebdedulcnireviecerdnarettimsnartneewtebecnatsidroF
sretem53dna
6S
gniylppuS
desolC
nepO
gniylppuSV21
gniylppuSV42
+
-
Trimmer
Trimmer RV1 for trimming the
emitted signal.
It increases clockwise.
-
+
For a correct
adjustment of the
beam signal it is also
necessary to set the
distance between
receiver and
transmitter by use of
dip-switch.
RV1
S2
321
ON
S6
S5
4
LED
ROSSO
+ )V8,72xam/V5,11.nim(V42roV21evitisoPgniylppuS
- evitageNgniylppuS
It shows the presence of the supplyng
RED
LED