EasyManua.ls Logo

AVS Electronics BM 60 M - Chapter 17: Disqualification (Important Warning); Chapter 18: Additional Supply Unit for BM60 M WS

AVS Electronics BM 60 M
24 pages
Print Icon
To Next Page IconTo Next Page
To Next Page IconTo Next Page
To Previous Page IconTo Previous Page
To Previous Page IconTo Previous Page
Loading...
- 19 -
SUPPLY UNIT
BATTERY
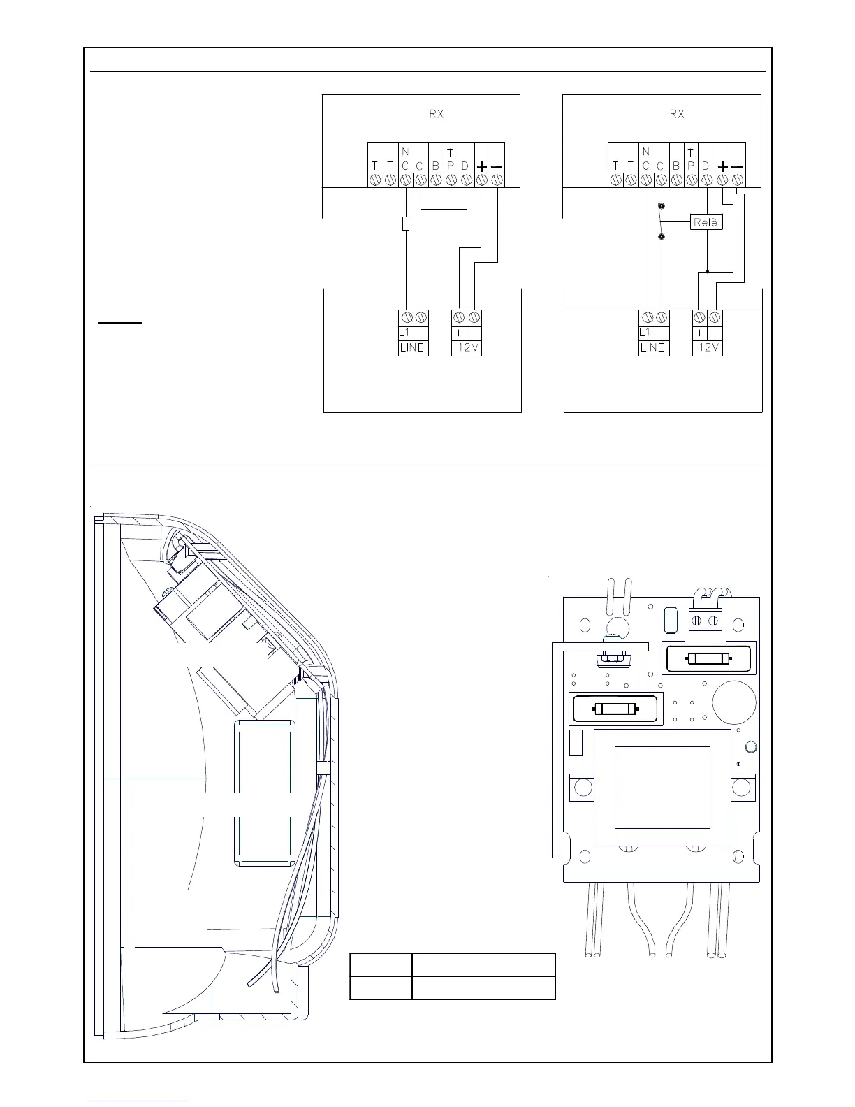
Chapter 17: Disqualification (Important Warning)
In order to prevent and show
disalignements caused by any
obstacle placed in the active
beam of the barriers at system
off, it is necessary to connect
the disqualifiation output
(terminal D) in series to the
exchange of the alarm relay or
alternatively, use it to control an
additional relay, whose
exchange has to be put in series
to the alarm line.
NOTE
The output D gives a
transistorized negative (max. 50
mA) which fails when the signal
level goes under a minimum
level for over 30 seconds.
Chapter 18: Additional supply unit for BM60M WS
In both transmitter and receiver, the supply
unit is fixed inside the cover on the top,
whilst a back-up battery 12V 0,8 Ah is
located in the bottom (to be fixed
with the strip given within), and
not exceeding the following
size: height 65 mm, length 96
mm, depth 25 mm.
Make the supplying
cables pass behind the
supply unit and the
backup battery, in order
not to affect the cover
closing.
Two protection fuses are
available in the supply
unit: F1 for mains
supplying and F2 of
battery input.
F1
F2
-
~ ~
+
+
-
Battery
input
Output
beam
supplying
Mains
supplying
input
1F V052-LAm005
2F V052-LAm005
Balance
Resistence
AVS CONTROL PANEL OTHER CONTROL PANEL