EasyManua.ls Logo

Backyard Discovery 2106536D - Page 19

Backyard Discovery 2106536D
71 pages
Print Icon
To Next Page IconTo Next Page
To Next Page IconTo Next Page
To Previous Page IconTo Previous Page
To Previous Page IconTo Previous Page
Loading...
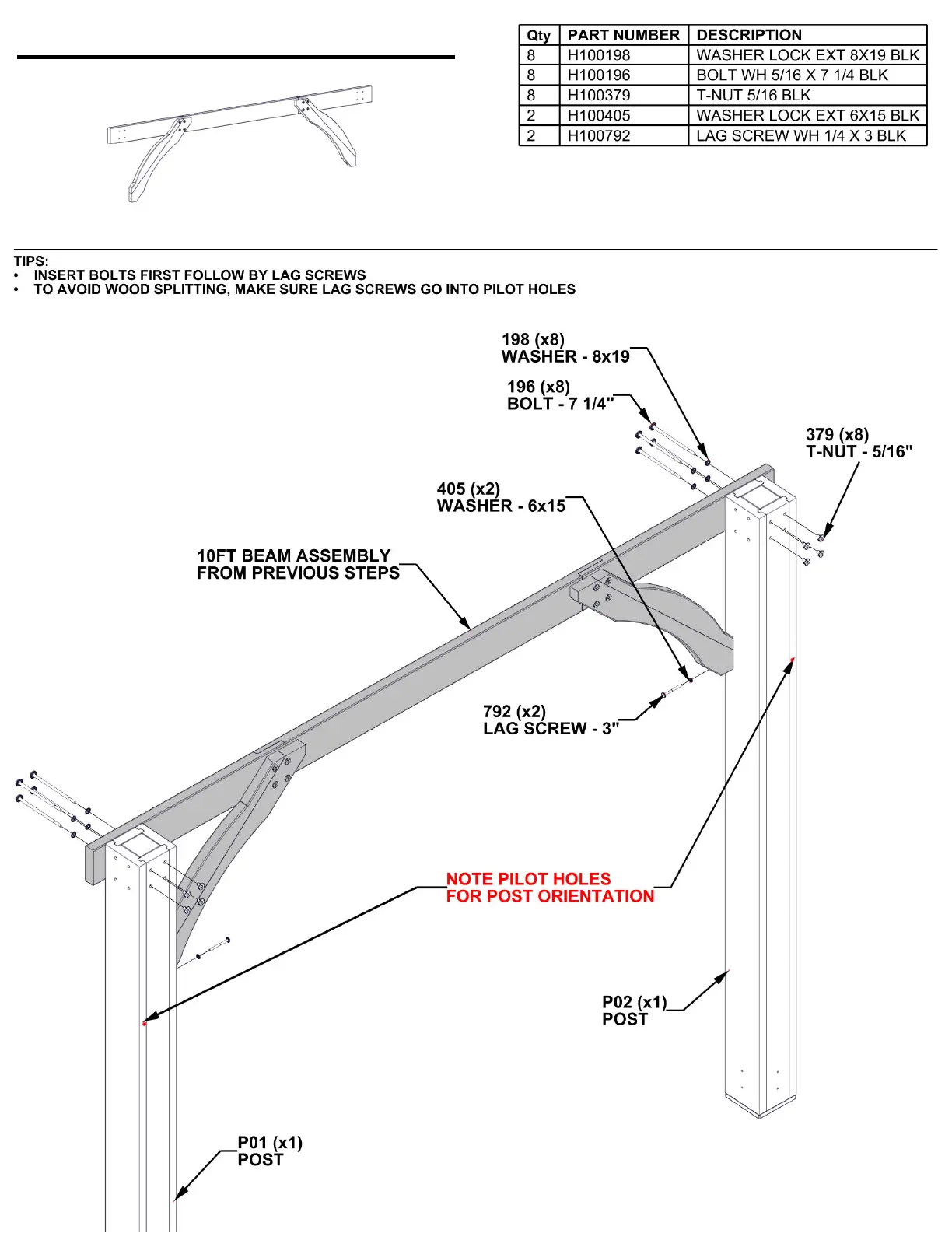
Qty
PART
NUMBER
8
H100198
8
H100196
8 H100379
2 H100405
2 H100792
TIPS:
INSERT
BOLTS
FIRST FOLLOW BY LAG SCREWS
TO
AVOID
WOOD
SPLITTING, MAKE SURE LAG SCREWS
GO
INTO PILOT HOLES
1
OFT
BEAM
ASSEMI
BL
Y
FROM PREVIOUS STEPS
198
(x8)
WASHER
-8x19
196 (x8)
BOLT - 7
114"
405
(x2)
WASHER
-6x15
792 (x2)
LAG
SCREW
-
3"
NOTE
PILOT
HOLES
.--
FOR POST ORIENTATION
P01
(x1)
POST
P02 (x1)
POST
DESCRIPTION
WASHER LOCK
EXT
8X19 BLK
BOLT WH 5/16 X 7 1/4 BLK
T-
NUT 5/16 BLK
WASHER LOCK
EXT
6X15 BLK
LAG SCREW WH 1/4 X 3 BLK
STEP 3 - 10FT POST ASSEMBLY
(x1) 10FT BEAM ASSEMBLY
19

Related product manuals