EasyManua.ls Logo

Backyard Discovery 37113 - Accessory, Bench, and Final Assembly

Backyard Discovery 37113
57 pages
Print Icon
To Next Page IconTo Next Page
To Next Page IconTo Next Page
To Previous Page IconTo Previous Page
To Previous Page IconTo Previous Page
Loading...
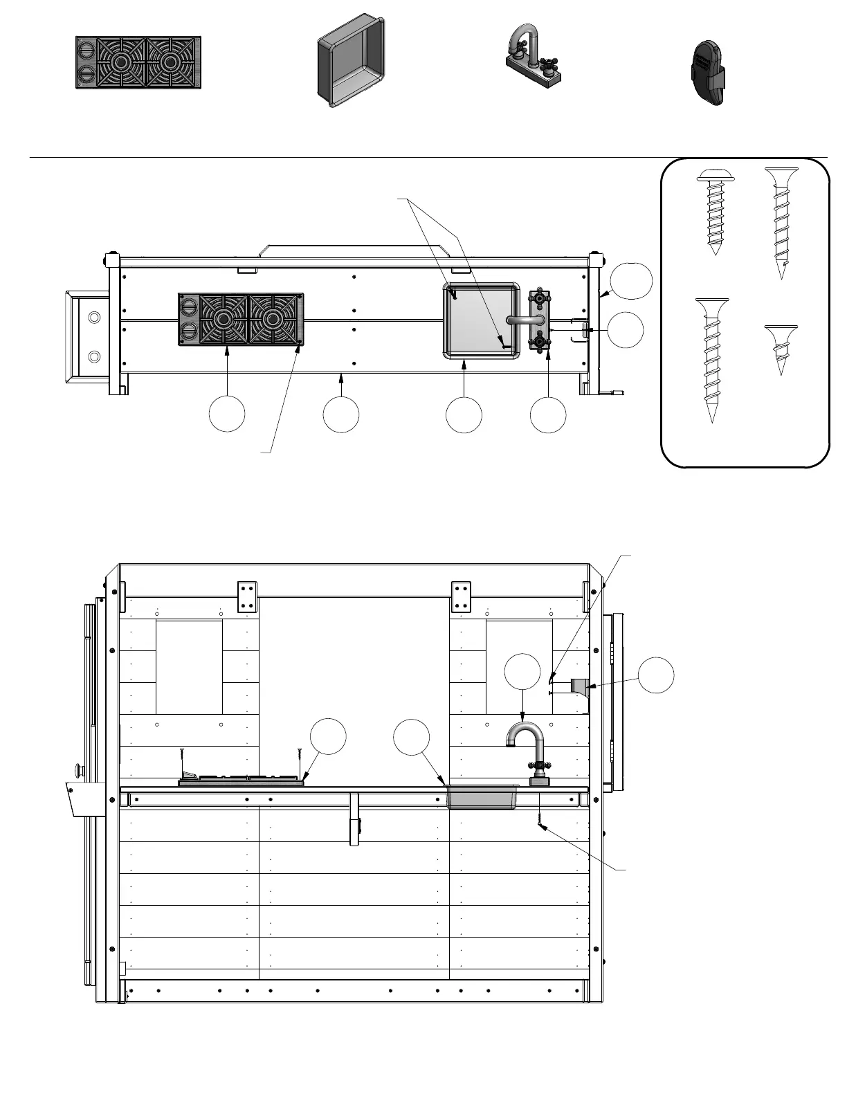
JS - SQUARE SINK BOWL - A100129
(1)
SCREW PWH
8x3/4
(2)
STEP 21
COUNTER TOP ACCESSORIES INSTALL
JX
JR
MS
JS
JS
JR
MS
JX
K1
WP2
SCREW PFH 8x1-1/8
(4 PLCS)
SCREW PWH 8x3/4
(2 PLCS)
SCREW PFH 8x1/2
(2 PLCS)
SCREW PFH 8x1-1/4
(2 PLCS)
(1) JX - STOVE ASSEMBLY - A100136
(1) JR - FAUCET KIT - A100125
(1) MS - PHONE KIT - A100132
SCREW PFH
8x1-1/8
(4)
SCREW PFH
8x1/2
(2)
SCREW PFH
8x1-1/4
(2)

Related product manuals